highlight_off
Riferimento annuncio 313559 info

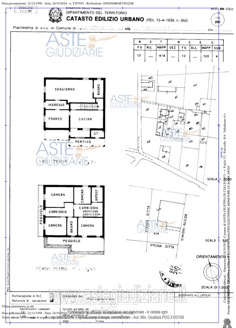
Appartamento Via Monte Grappa, 2, 35010 Santa Giustina In Colle PD, Italia, 35010 Santa Giustina in Colle (PD)

0
€ 150.000
Vendita all'asta Senza incanto, con gara telematica sincrona - LOTTO UNICO: trattasi di intero edificio residenziale composto da due abitazioni accostate, tra loro indipendenti e con accesso autonomo, ognuna su due livelli e ognuna con proprio scoperto di pertinenza attualmente non diviso da recinzioni, sito in Santa Giustina in Colle-PD, via Monte Grappa n. 2. Occupato dal debitore esecutato e da terzi senza titolo. Prezzo base € 150.000,00 (offerta minima € 112.500,00). Data vendita 22/10/2025 ore 11:00. Giudice Rossi. Professionista delegato alla vendita Dott. Chiara Baccco - Email "chiara.bacco.com@gmail.com"; Cell. 3346449954. Custode Giudiziario Dott. Chiara Baccco - Email "chiara.bacco.com@gmail.com"; Cell. 3346449954. Rif. Tribunale di Padova - Espropriazione immobiliare (cartabia) n. 278/2024

Superficie mq
Vani
Bagni
Piano 0

Tipologia di vendita Giudiziaria
Modalità di vendita Sincrona telematica
Termine presentazione offerte 01/01/1900 ore 00:00
Data e ora inizio gara 22/10/2025 ore 11:00
Codice ID astegiudiziarie.it 4334772
0
€ 150.000

Ti interessa questa vendita?

north_east

Clicca qui per essere indirizzato alla scheda sul sito di provenienza

Bene di astegiudiziarie.it