highlight_off
Riferimento annuncio 299004 info

Appartamento Via Giuseppe Verdi, 51, 73017 Sannicola LE, Italia, 73017 Sannicola (LE)

7,00
132,74
1
€ 41.103
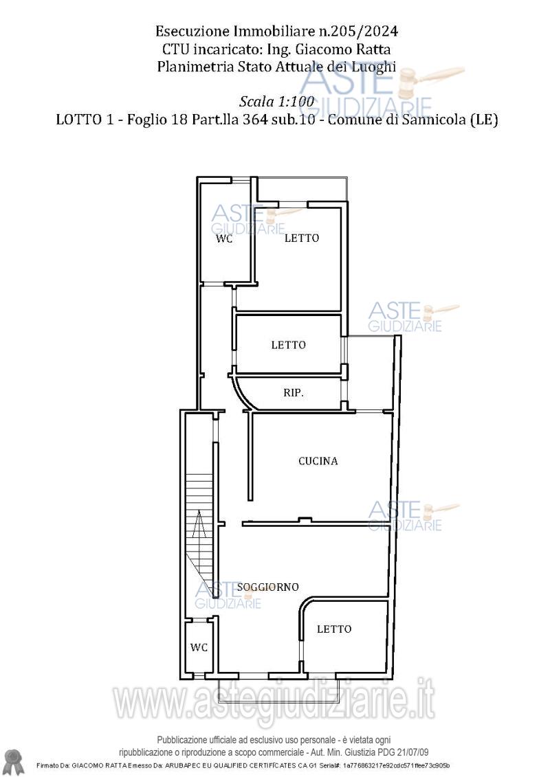
Vendita all'asta Senza incanto, con gara telematica asincrona - LOTTO 1: FABBRICATO ad uso residenziale per la PIENA PROPRIETA’ DELLA QUOTA DI 1/1, sito in SANNICOLA (LE) alla via Verdi n. 51 al Primo Piano con annesso Box al piano seminterrato (analizzato come CORPO B successivamente). Tale abitazione ricade in un complesso di 4 alloggi, con relativi box nel piano seminterrato. All’abitazione oggetto di perizia si accede per mezzo di ingresso sulla via pubblica. Prezzo base € 41.103,00 (offerta minima € 30.828,00). Data inizio operazioni di vendita: 26/03/2026 ore 11:00. Giudice Antonio Barbetta. Professionista delegato alla vendita Dott. Nadia Arnesano - Email "nadiaarnesanolecce@gmail.com"; Cell. 3299713982. Custode Giudiziario Dott. Nadia Arnesano - Email "nadiaarnesanolecce@gmail.com"; Cell. 3299713982. Rif. Tribunale di Lecce - Espropriazione immobiliare (cartabia) n. 205/2024

Superficie 132,74 mq
Vani 7,00
Bagni
Piano 1

Tipologia di vendita Giudiziaria
Modalità di vendita Asincrona telematica
Termine presentazione offerte 01/01/1900 ore 00:00
Data e ora inizio gara 26/03/2026 ore 11:00
Codice ID astegiudiziarie.it 4323006
7,00
132,74
1
€ 41.103

Ti interessa questa vendita?

north_east

Clicca qui per essere indirizzato alla scheda sul sito di provenienza

Bene di astegiudiziarie.it