Riferimento annuncio 283149
        
    
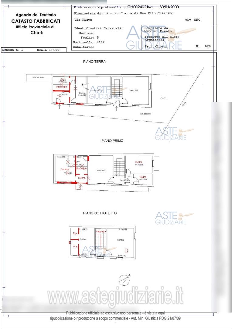
    Appartamento Via Piave n.26, 66038 San Vito Chietino (CH)
                
                8,50
            
            
                
                5258,00
            
            
                
                0
            
        
€ 140.000    
                Vendita in attesa dell'emissione del nuovo bando d'asta. LOTTO UNICO: Nuda proprietà di immobile ad uso abitazione ubicato nel Comune di San Vito Chietino (CH), C.da Sant’Apollinare Via Piave n.26, con annessa corte, articolata su tre livelli. Nuda proprietà di terreno agricolo della superficie di 680 mq, coltivato ad uliveto; Nuda proprietà di terreno ella superficie di 3.010 mq coltivato a vigneto; Nuda proprietà di terreno agricolo della superficie di 550 mq coltivato a vigneto; Nuda proprietà di terreno agricolo della superficie 860 mq, incolto. Ultimo prezzo base € 140.000,00 (offerta minima € 105.000,00). Giudice Chiara D'alfonso. Professionista delegato alla vendita Avv. Daniela Arrizza - Email "daniela.arrizza@virgilio.it"; Tel. 0872619063. Custode Giudiziario   Antonello Ferroni - Email "ivglanciano@gmail.com"; Tel. 0872715361.  Rif. Tribunale di Lanciano - Espropriazione immobiliare (cartabia) n. 1/2024
            
   
| Superficie | 5258,00 mq | 
|---|---|
| Vani | 8,50 | 
| Bagni | |
| Piano | 0 | 
| Tipologia di vendita | Giudiziaria | 
|---|---|
| Modalità di vendita | Asincrona telematica | 
| Termine presentazione offerte | 28/10/2025 ore 12:00 | 
| Data e ora inizio gara | 29/10/2025 ore 11:00 | 
 
                         
                         
                         
                         
                         
                         
                         
                         
                         
                         
                         
                         
                         
                         
                         
                         
                         
                         
                         
                         
                         
                         
                        