highlight_off
Riferimento annuncio 116664 info

Appartamento Via Nazionale n. 44/A Ex 60, 07052 San Teodoro (SS)

9,50
337,15
3
0
€ 460.000
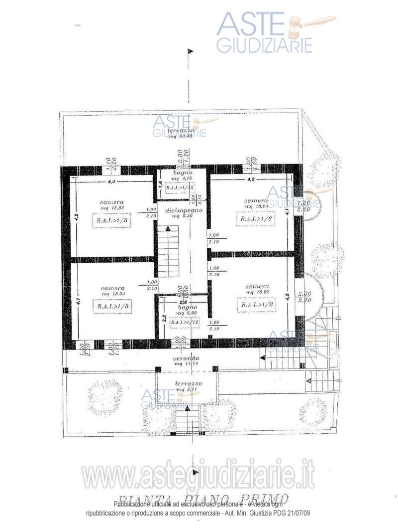
Vendita all'asta Senza incanto, con gara telematica asincrona - LOTTO UNICO: : Casa di civile abitazione sita in San Teodoro (SS) Via Nazionale 44/ (ex 60) Località Straulas – disposta su due piani fuori terra, inserito in un contesto residenziale con ingresso direttamente prospiciente sulla strada statale SS n°125, nota come Via Nazionale… della superficie convenzionale complessiva di mq. 335,64. Valore di stima: € 460.000,00 . Prezzo base € 460.000,00 (offerta minima € 460.000,00). Data inizio operazioni di vendita: 10/02/2026 ore 16:00. Giudice Dott. Riccardo De Vito. Professionista delegato alla vendita Avv. Giovanna Sanna - Email "avvgiovannasanna@gmail.com"; Tel. 078434184. Custode Giudiziario Ivg Tempio Pausania - Email "visite.ivgnuoro@gmail.com"; Tel. 079630505. Rif. Tribunale di Nuoro - Esecuzione immobiliare n. 19/2013

Superficie 337,15 mq
Vani 9,50
Bagni 3
Piano 0

Tipologia di vendita Giudiziaria
Modalità di vendita Asincrona telematica
Termine presentazione offerte 01/01/1900 ore 00:00
Data e ora inizio gara 10/02/2026 ore 16:00
Codice ID astegiudiziarie.it 320572
9,50
337,15
3
0
€ 460.000

Ti interessa questa vendita?

north_east

Clicca qui per essere indirizzato alla scheda sul sito di provenienza

Bene di astegiudiziarie.it