highlight_off
Riferimento annuncio 320491 info

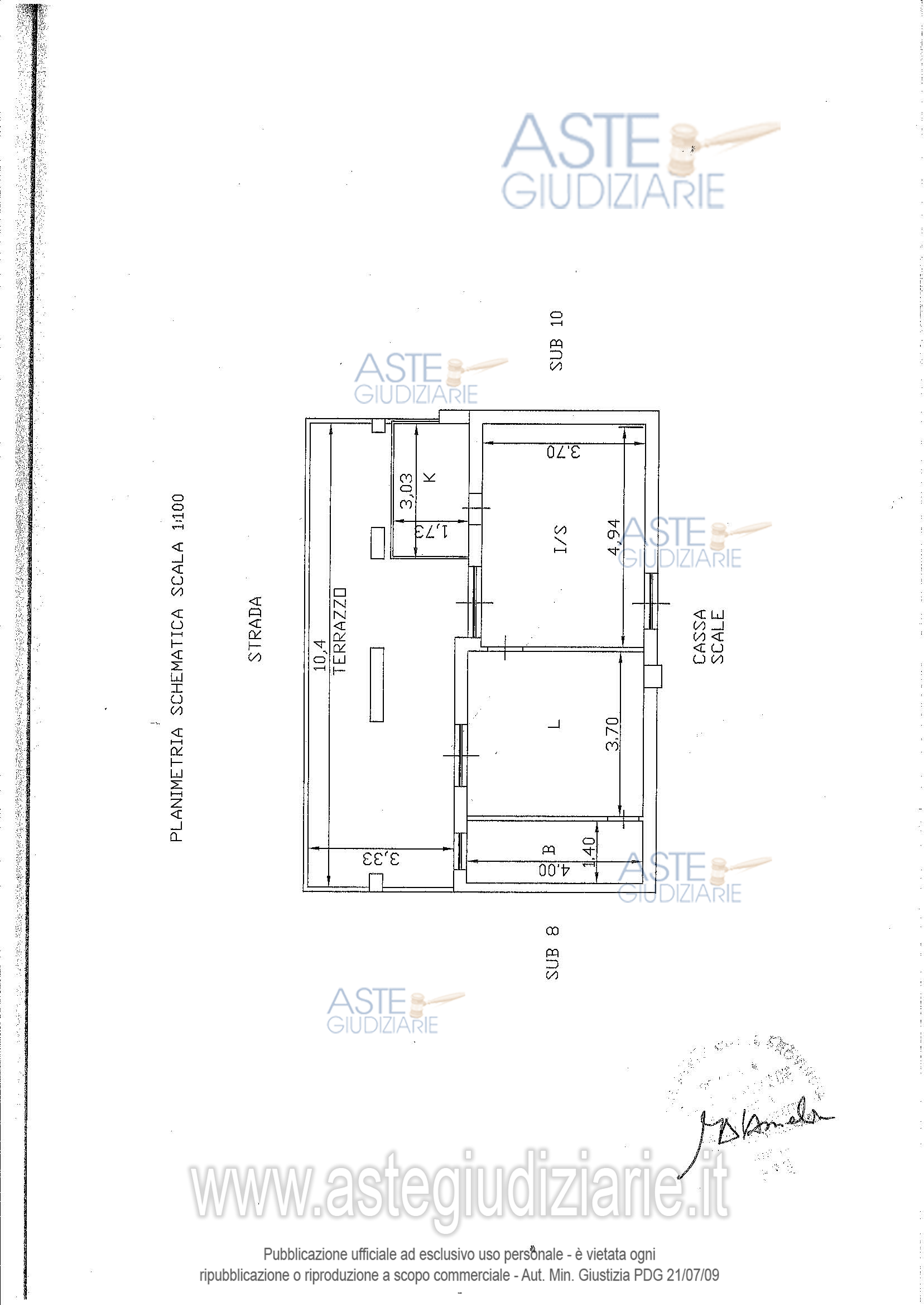
Appartamento Via dell'Orizzonte, 3, 81054 San Prisco CE, Italia, 81054 San Prisco (CE)

2,50
48,00
0
€ 70.981
Vendita all'asta Senza incanto - LOTTO UNICO: Piena ed intera proprietà di un appartamento posto al secondo piano, un locale cantinola al piano seminterrato e di una autorimessa al piano seminterrato tutti facenti parte di un fabbricato sito nel Comune di San Prisco (CE) alla Via Dell’Orizzonte n. 3 (catastalmente Via dello Sport). Prezzo base € 70.980,75 (offerta minima € 53.235,56). Data vendita 29/04/2026 ore 15:30. Giudice Assunta D'amore. Professionista delegato alla vendita Not. Andrea Valente - Email "richiestavisita@notaioandreavalente.it"; Tel. 081403504. Corte d'Appello di Napoli - Contenzioso civile n. 4306/2016

Superficie 48,00 mq
Vani 2,50
Bagni
Piano 0

Tipologia di vendita Giudiziaria
Modalità di vendita Presso il venditore
Termine presentazione offerte 01/01/1900 ore 00:00
Data e ora inizio gara 29/04/2026 ore 15:30
Codice ID astegiudiziarie.it 4340280
2,50
48,00
0
€ 70.981

Ti interessa questa vendita?

north_east

Clicca qui per essere indirizzato alla scheda sul sito di provenienza

Bene di astegiudiziarie.it