highlight_off
Riferimento annuncio 315043 info

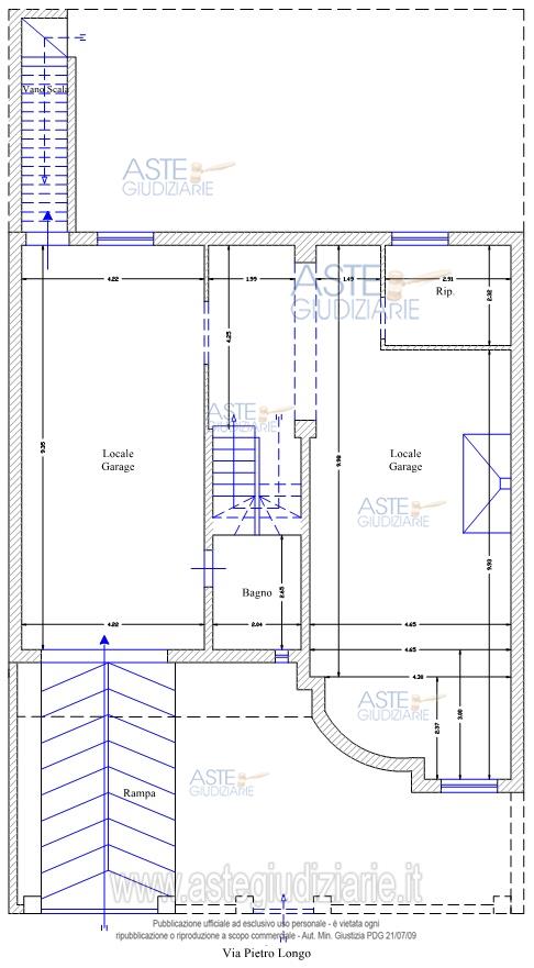
Appartamento Via Pietro Longo, 16, 72026 San Pancrazio Salentino (BR)

7,00
0
€ 97.928
Vendita all'asta Senza incanto, con gara telematica asincrona - LOTTO 1: Piena proprietà di abitazione indipendente al piano terra e garage indipendente al piano seminterrato. Prezzo base € 97.927,50 (offerta minima € 73.445,63). Data inizio operazioni di vendita: 02/03/2026 ore 09:50. Giudice Francesco Giliberti. Professionista delegato alla vendita Avv. Silvana Cristofaro. Custode Giudiziario Avv. Silvana Cristofaro - Email "crisilvy@libero.it". Rif. Tribunale di Brindisi - Espropriazione immobiliare (cartabia) n. 93/2024

Superficie mq
Vani 7,00
Bagni
Piano 0

Tipologia di vendita Giudiziaria
Modalità di vendita Asincrona telematica
Termine presentazione offerte 23/02/2026 ore 12:00
Data e ora inizio gara 02/03/2026 ore 09:50
Codice ID astegiudiziarie.it 4335748
7,00
0
€ 97.928

Ti interessa questa vendita?

north_east

Clicca qui per essere indirizzato alla scheda sul sito di provenienza

Bene di astegiudiziarie.it