highlight_off
Riferimento annuncio 279193 info

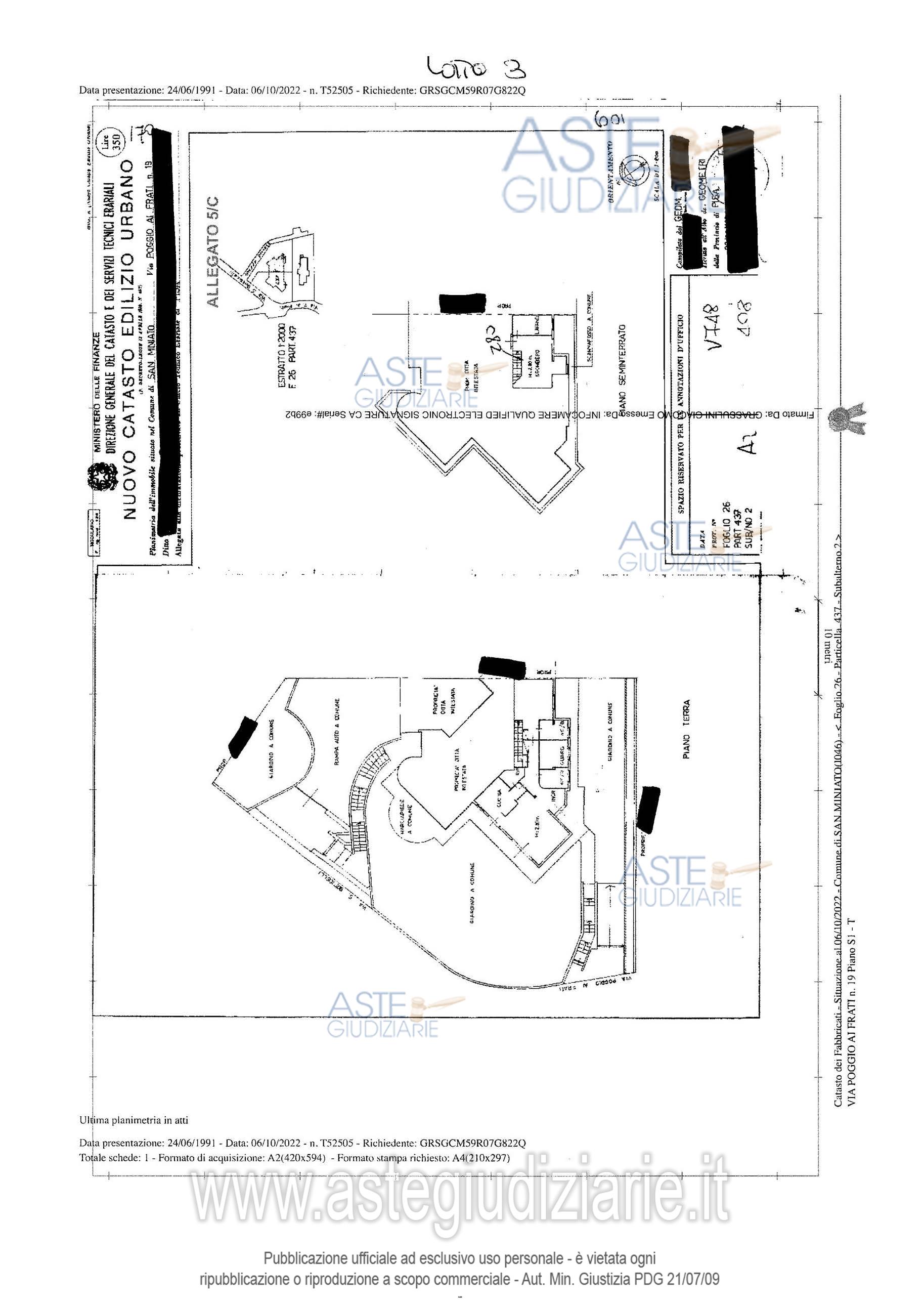
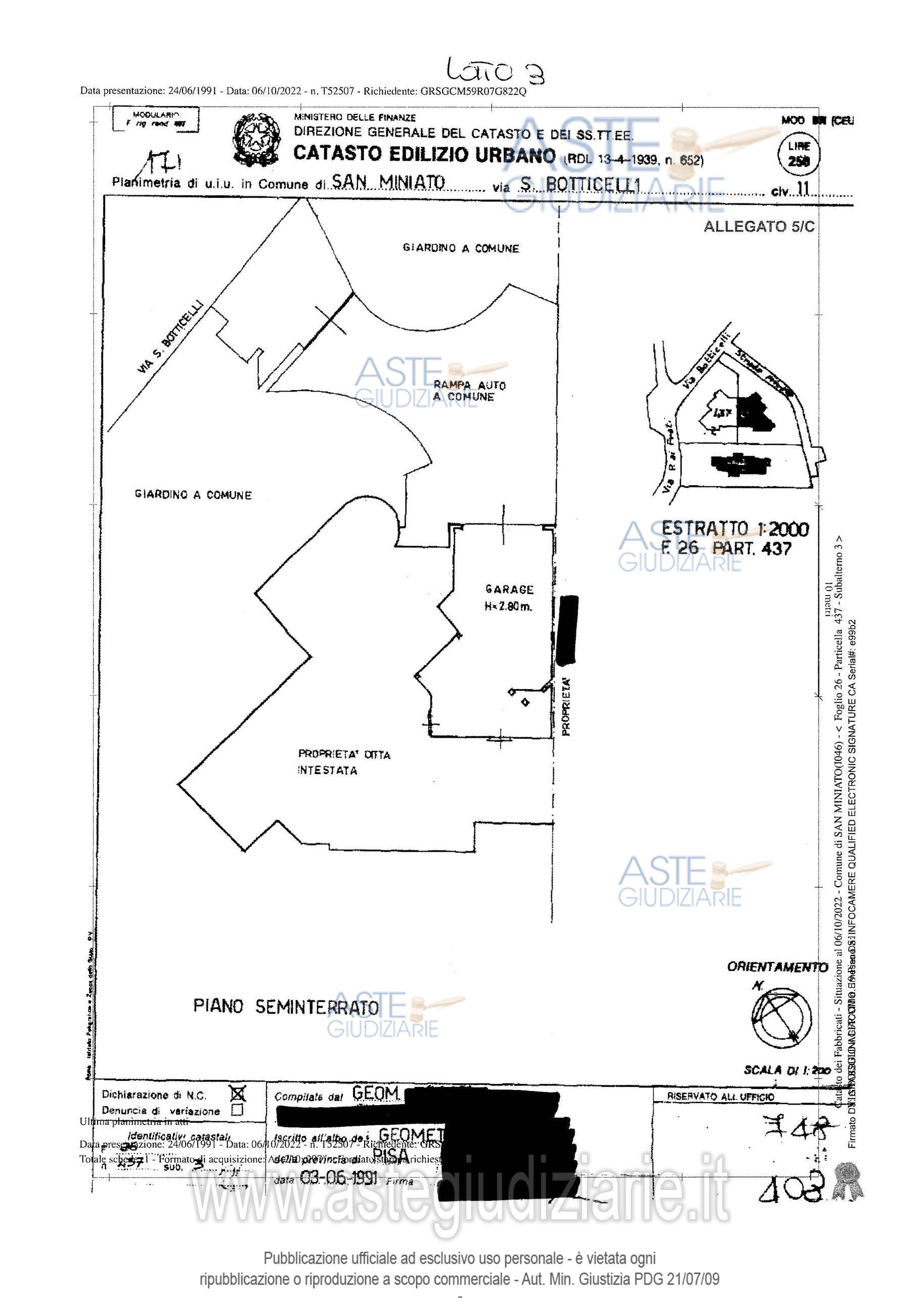
Appartamento Via Botticelli n. 11, 56028 San Miniato (PI)

11,00
28116,00
1
0
€ 465.281
Vendita all'asta Senza incanto, con gara telematica sincrona mista - LOTTO 3: due appartamenti e un garage. Prezzo base € 465.281,35 (offerta minima € 348.961,01). Data vendita 07/10/2025 ore 10:15. Professionista delegato alla vendita Dott. Katiuscia Orsucci - Email "korsucci@yahoo.it"; Cell. 3441230449; Tel. 0587354860. Custode Giudiziario Dott. Istituto Vendite Giudiziarie Di Pisa - Email "prenotazionipisa@astagiudiziaria.com"; Tel. 050554790. Rif. Tribunale di Pisa - Esecuzione immobiliare post legge 80 n. 16/2022

Superficie 28116,00 mq
Vani 11,00
Bagni 1
Piano 0

Tipologia di vendita Giudiziaria
Modalità di vendita Sincrona mista
Termine presentazione offerte 06/10/2025 ore 13:00
Data e ora inizio gara 07/10/2025 ore 10:15
Codice ID astegiudiziarie.it 4307754
11,00
28116,00
1
0
€ 465.281

Ti interessa questa vendita?

north_east

Clicca qui per essere indirizzato alla scheda sul sito di provenienza

Bene di astegiudiziarie.it