Riferimento annuncio 314318
        
    
    Appartamento Via Camillo Cavour, 28, 81030 San Marcellino CE, Italia, 81030 San Marcellino (CE)
                
                4,50
            
            
                
                66,30
            
            
                
                2
            
        
€ 53.000    
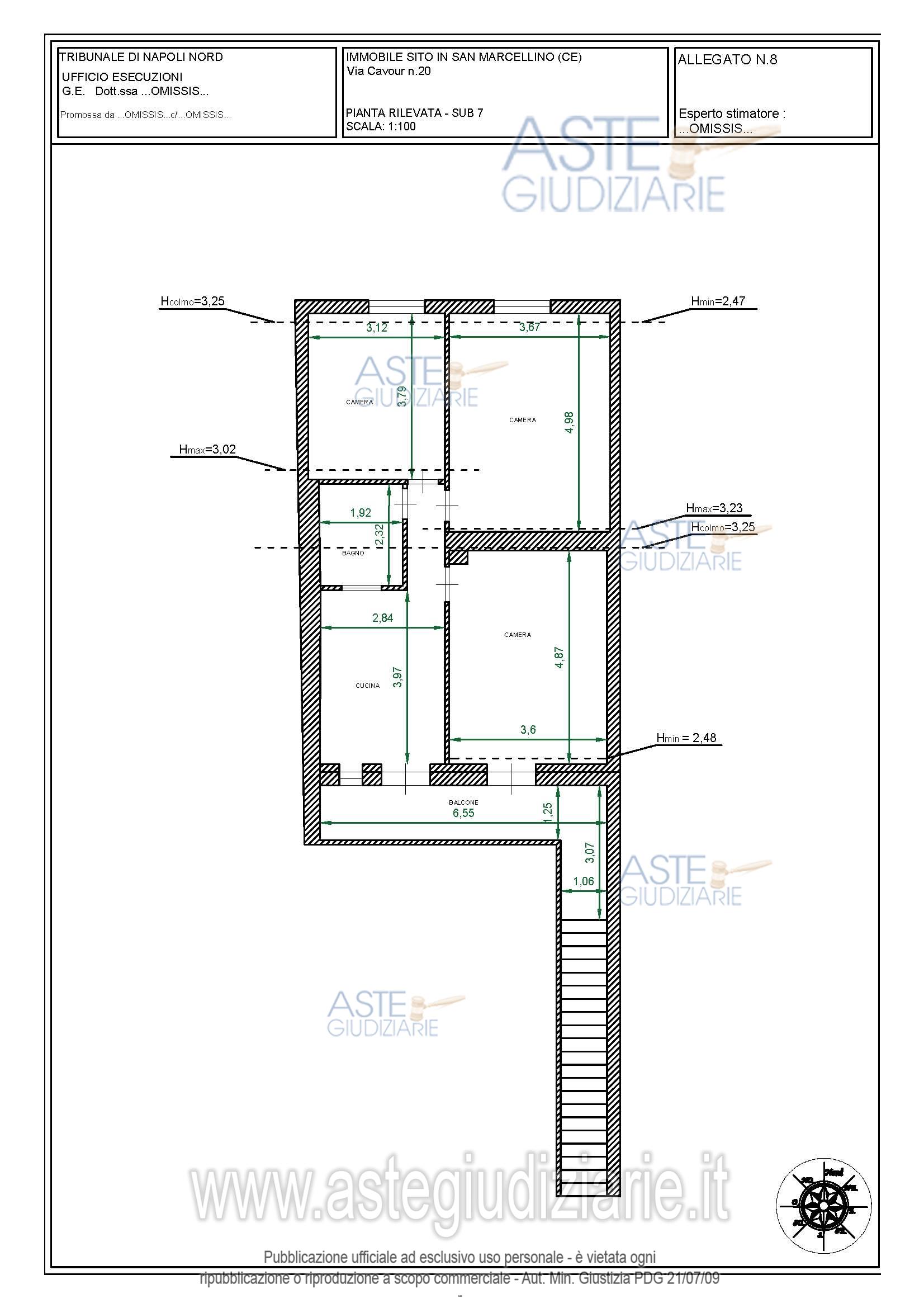
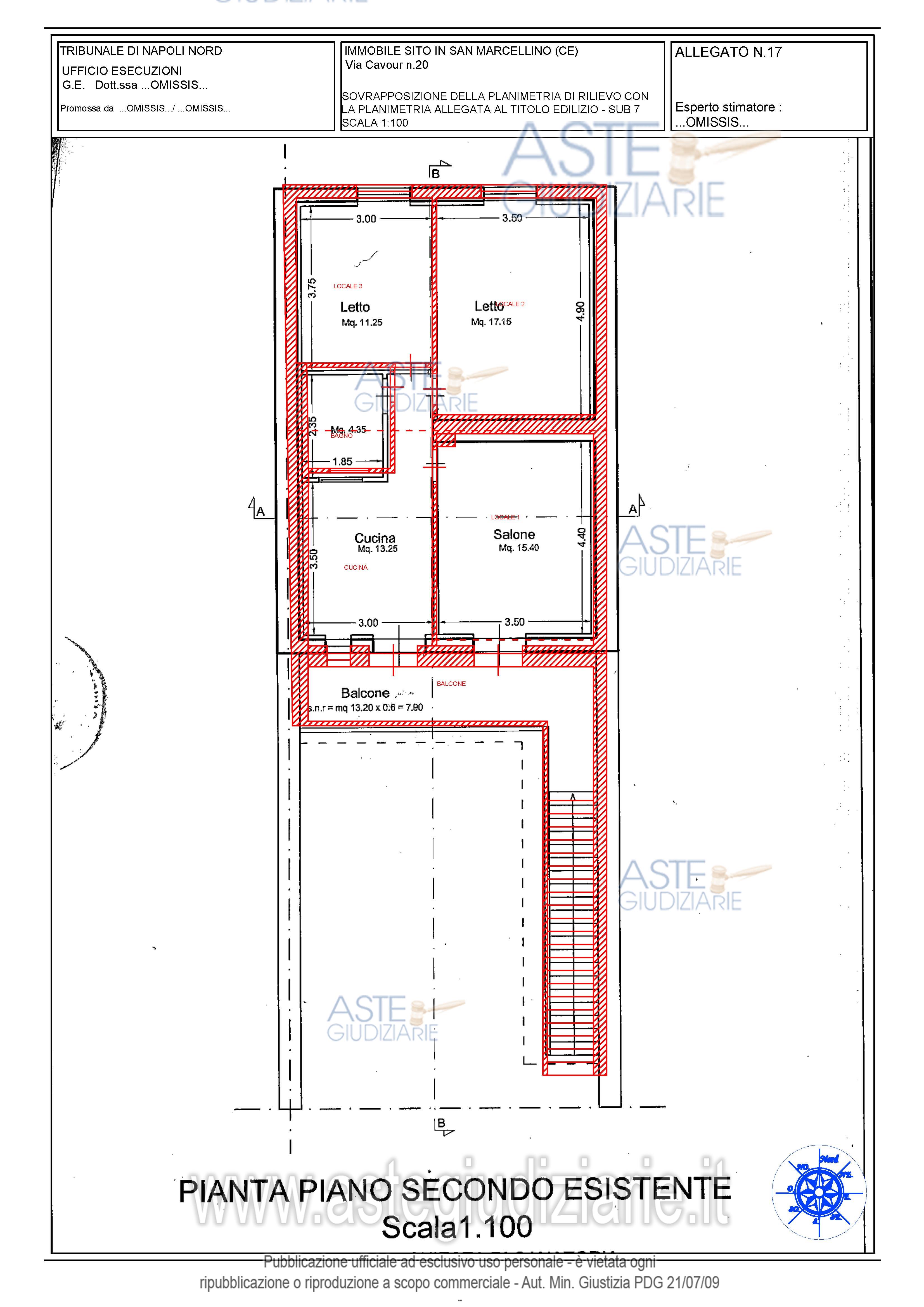
                Vendita all'asta Senza incanto, con gara telematica asincrona - LOTTO 3:  Piena ed intera proprietà di appartamento di tipo economico ubicato in San Marcellino (CE), alla Via Cavour n. 28, piano secondo,apppartamento in stato di conservazione mediocre con  4 locali 1 bagno e 1 piccolo disimpegno in presenza di un pianerottolo/balconata Il bene è riportato nel N.C.E.U. di San Marcellino (CE) al Foglio 1, P.lla 5051, Sub. 7. Prezzo base € 53.000,00 (offerta minima € 39.750,00). Data inizio operazioni di vendita: 13/11/2025 ore 16:00. Giudice Dott. Lorella Triglione. Professionista delegato alla vendita Dott. Paolo Liguoro - Email "paololiguoro2007@gmail.com"; Cell. 3398776873; Tel. 0818990087. Custode Giudiziario Dott. Paolo Liguoro - Email "paololiguoro2007@gmail.com"; Cell. 3398776873; Tel. 0818990087.  Rif. Tribunale di Napoli Nord - Espropriazione immobiliare (cartabia) n. 317/2024
            
   
| Superficie | 66,30 mq | 
|---|---|
| Vani | 4,50 | 
| Bagni | |
| Piano | 2 | 
| Tipologia di vendita | Giudiziaria | 
|---|---|
| Modalità di vendita | Asincrona telematica | 
| Termine presentazione offerte | 12/11/2025 ore 23:59 | 
| Data e ora inizio gara | 13/11/2025 ore 16:00 | 
 
                         
                         
                         
                         
                         
                         
                         
                         
                         
                         
                         
                         
                         
                         
                         
                         
                        