highlight_off
Riferimento annuncio 307555 info

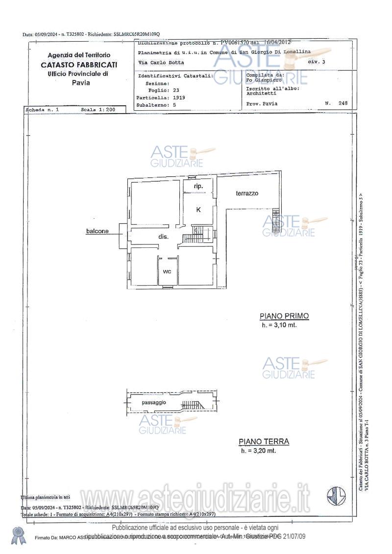
Appartamento Via Carlo Botta, 3, 27020 San Giorgio di Lomellina (PV)

0
€ 70.600
Vendita all'asta Senza incanto, con gara telematica asincrona - LOTTO UNICO: Fabbricato a due piani fuori terra, costituito da appartamento a piano terra, appartamento a piano primo autorimessa e area pertinenziale. Prezzo base € 70.600,00 (offerta minima € 52.950,00). Data inizio operazioni di vendita: 18/11/2025 ore 15:00. Giudice Erminio Rizzi. Professionista delegato alla vendita Not. Roberto Borri - Email "notai@paviaesecuzioni.it"; Tel. 038234728. Custode Giudiziario Ifir Piemonte Ivg Srl - Email "richiestevisite.vigevano@ifir.it"; Tel. 0381691137. Rif. Tribunale di Pavia - Espropriazione immobiliare (cartabia) n. 261/2024

Superficie mq
Vani
Bagni
Piano 0

Tipologia di vendita Giudiziaria
Modalità di vendita Asincrona telematica
Termine presentazione offerte 01/01/1900 ore 00:00
Data e ora inizio gara 18/11/2025 ore 15:00
Codice ID astegiudiziarie.it 4329692
0
€ 70.600

Ti interessa questa vendita?

north_east

Clicca qui per essere indirizzato alla scheda sul sito di provenienza

Bene di astegiudiziarie.it