highlight_off
Riferimento annuncio 333348 info

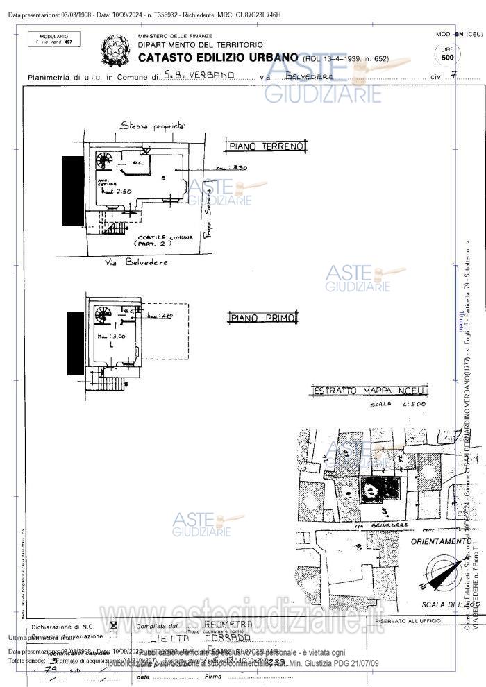
Appartamento Via Belvedere, 3, 28804 Rovegro San Bernardino Verbano VB, Italia, 28804 San Bernardino Verbano (VB)

3,00
64,00
0
€ 70.500
Vendita all'asta Senza incanto, con gara telematica asincrona - LOTTO 6: Diritto di piena proprietà di un'abitazione sita nel Comune di San Bernardino Verbano. Prezzo base € 70.500,00 (offerta minima € 52.875,00). Data inizio operazioni di vendita: 23/06/2026 ore 10:00. Giudice: Dott. Caterina Sinico. Custode Giudiziario: Aste Giudiziarie Inlinea Spa - Email "ufficiocustodie@astegiudiziarie.it". Rif. Tribunale di Verbania - Espropriazione immobiliare (cartabia) n. 55/2024

Superficie 64,00 mq
Vani 3,00
Bagni
Piano 0

Tipologia di vendita Giudiziaria
Modalità di vendita Asincrona telematica
Termine presentazione offerte 22/06/2026 ore 12:00
Data e ora inizio gara 23/06/2026 ore 10:00
Codice ID astegiudiziarie.it 4350677
3,00
64,00
0
€ 70.500

Ti interessa questa vendita?

north_east

Clicca qui per essere indirizzato alla scheda sul sito di provenienza

Bene di astegiudiziarie.it