highlight_off
Riferimento annuncio 320395 info

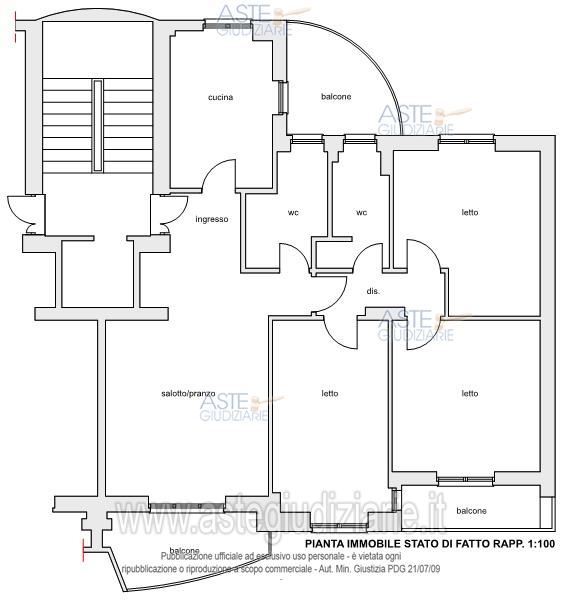
Appartamento Via Vicinale Cupa Parisi, 84133 Salerno SA, Italia, 84100 Salerno (SA)

5,00
124,05
2
0
€ 190.000
Vendita all'asta Senza incanto, con gara telematica asincrona - LOTTO UNICO: Piena ed esclusiva proprietà superficiaria dell’unità immobiliare ad uso residenziale; con annesso box auto pertinenziale. Prezzo base € 190.000,00 (offerta minima € 142.500,00). Data inizio operazioni di vendita: 20/01/2026 ore 11:00. Professionista delegato alla vendita Avv. Antonio Guglielmetti - Email "aguglielmetti@volpeguglielmetti.it"; Cell. 3311147104; Tel. 089722524. Custode Giudiziario Avv. Antonio Guglielmetti - Email "aguglielmetti@volpeguglielmetti.it"; Cell. 3311147104; Tel. 089722524. Rif. Tribunale di Salerno - Espropriazione immobiliare (cartabia) n. 107/2024

Superficie 124,05 mq
Vani 5,00
Bagni 2
Piano 0

Tipologia di vendita Giudiziaria
Modalità di vendita Asincrona telematica
Termine presentazione offerte 19/01/2026 ore 11:00
Data e ora inizio gara 20/01/2026 ore 11:00
Codice ID astegiudiziarie.it 4340323
5,00
124,05
2
0
€ 190.000

Ti interessa questa vendita?

north_east

Clicca qui per essere indirizzato alla scheda sul sito di provenienza

Bene di astegiudiziarie.it