highlight_off
Riferimento annuncio 299105 info

Appartamento Via Alcide de Gasperi, 8, 15045 Sale AL, Italia, 15045 Sale (AL)

0
€ 93.385
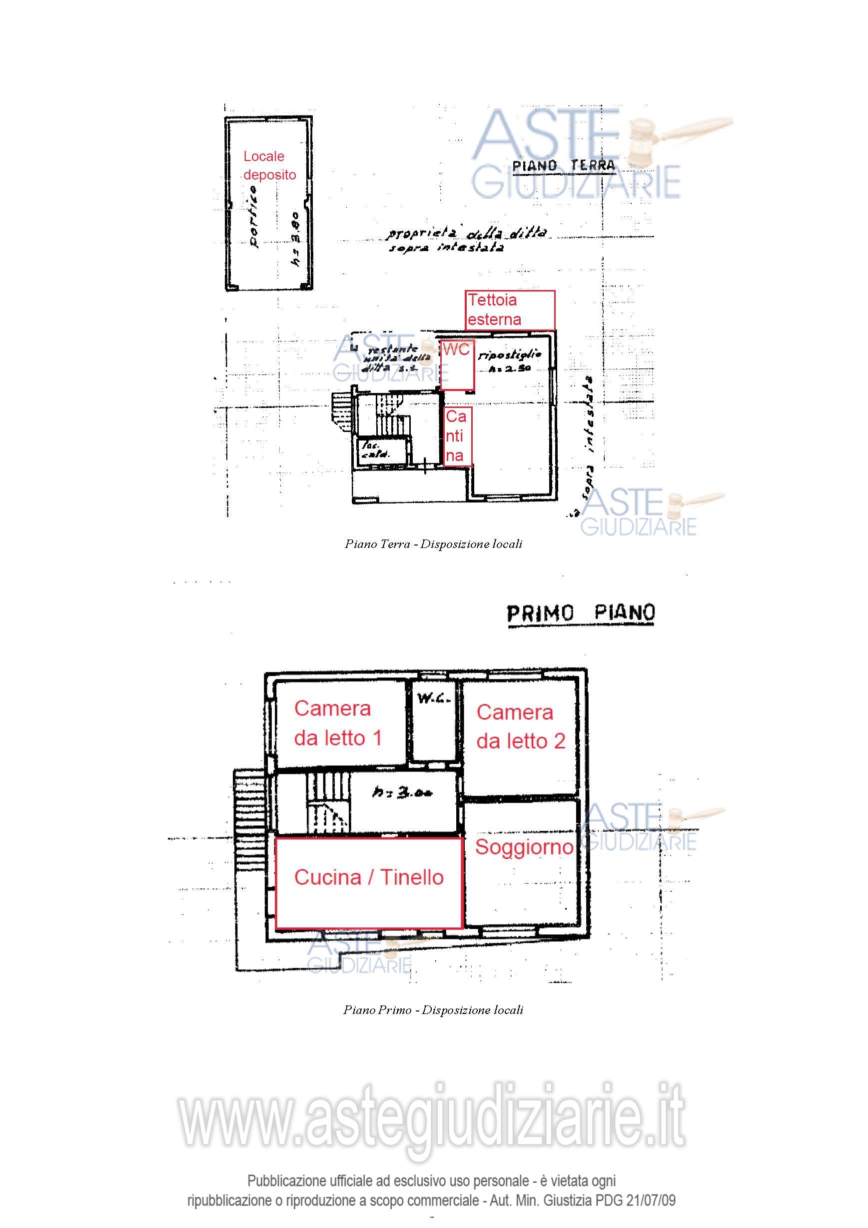
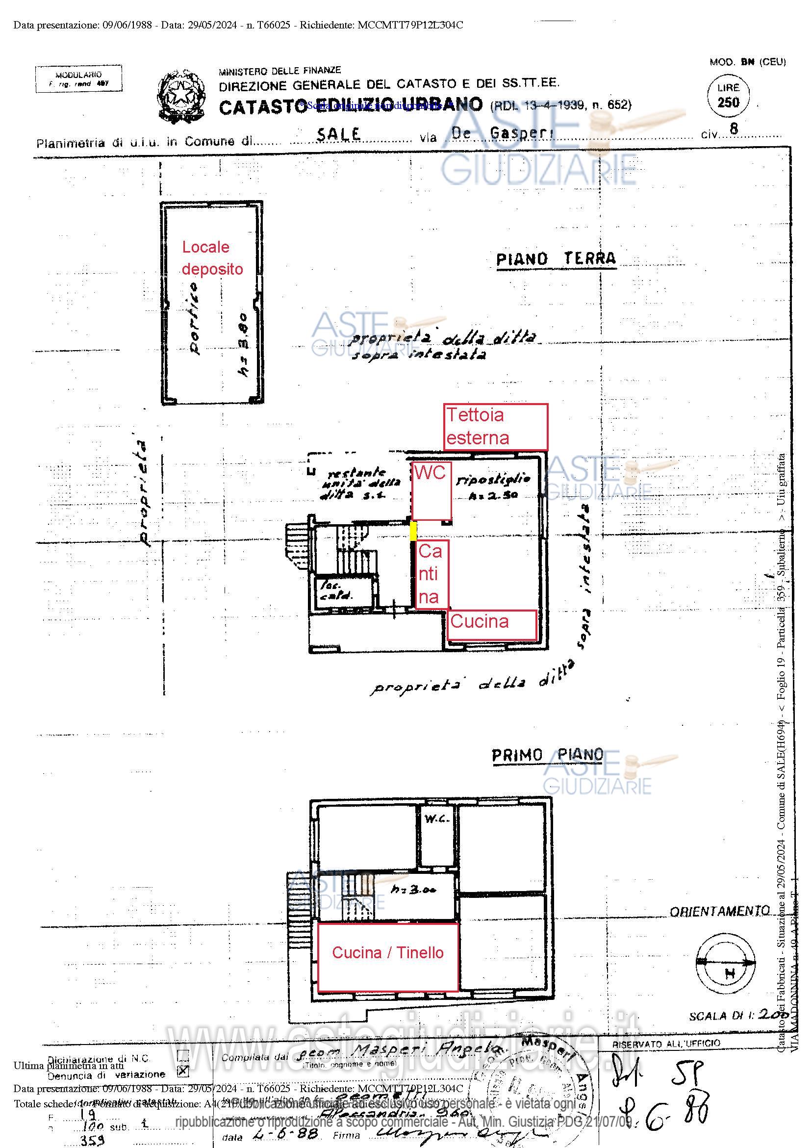
Vendita all'asta Senza incanto, con gara telematica asincrona - LOTTO 1: Piena proprietà dei seguenti beni immobili: Abitazione unifamiliare (villa) composto al piano primo da: cucina/tinello, bagno, n. 2 camere da letto e soggiorno; al piano terra da locali di pertinenza: ripostiglio, cantina, bagno, locale caldaia. Box auto e locale deposito. Il tutto censito come segue: Foglio 19, part. 100 sub 1 e Fg. 19 part. 359 graffati, cat. A/2 e Cl. 3; Foglio 19, part. 100 sub 2 – CAT C/6. Risultano presenti irregolarità catastali e edilizie. Gli immobili sono occupati. Prezzo base € 93.384,75 (offerta minima € 70.038,56). Data inizio operazioni di vendita: 04/11/2025 ore 15:00. Professionista delegato alla vendita Avv. Patrizia Tuis - Email "avv.tuis@gmail.com"; Cell. 3482856556; Tel. 0131863755. Custode Giudiziario Avv. Patrizia Tuis - Email "avv.tuis@gmail.com"; Cell. 3482856556; Tel. 0131863755. Rif. Tribunale di Alessandria - Espropriazione immobiliare (cartabia) n. 123/2024

Superficie mq
Vani
Bagni
Piano 0

Tipologia di vendita Giudiziaria
Modalità di vendita Asincrona telematica
Termine presentazione offerte 01/01/1900 ore 00:00
Data e ora inizio gara 04/11/2025 ore 15:00
Codice ID astegiudiziarie.it 4323066
0
€ 93.385

Ti interessa questa vendita?

north_east

Clicca qui per essere indirizzato alla scheda sul sito di provenienza

Bene di astegiudiziarie.it