highlight_off
Riferimento annuncio 310355 info

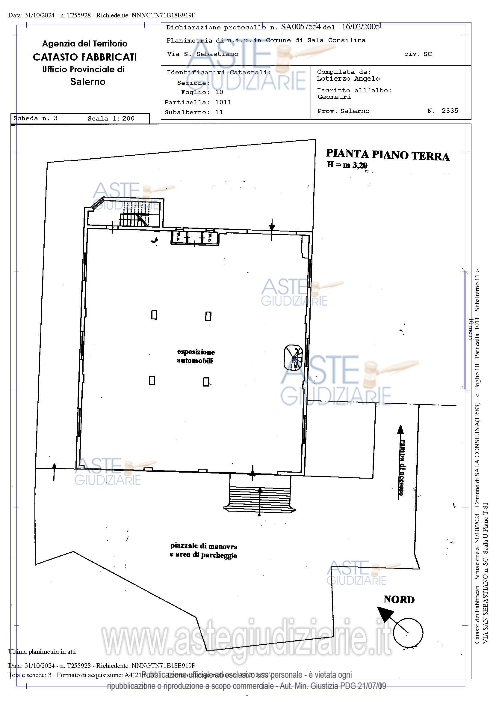
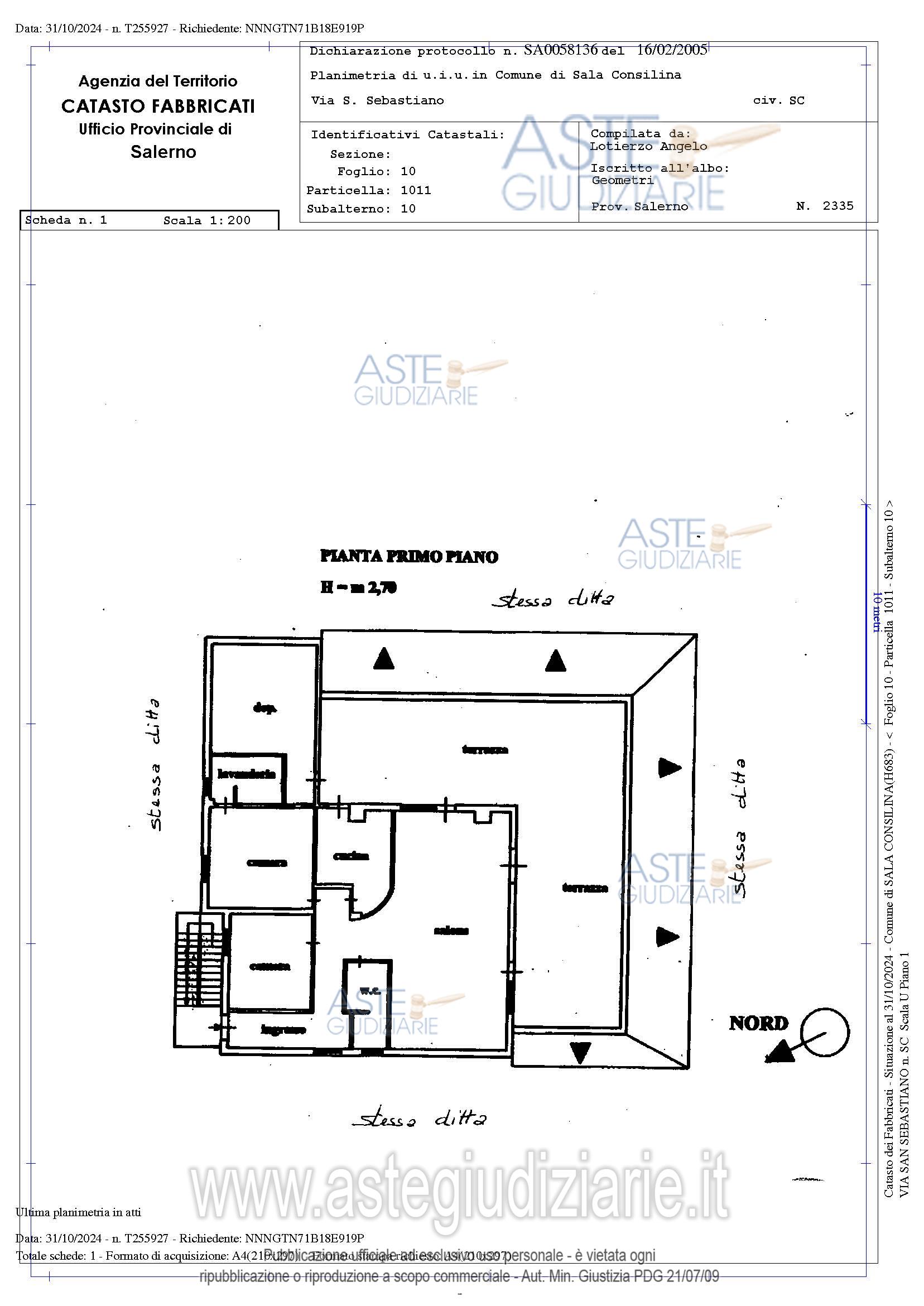
Appartamento Via San Sebastiano, 84036 Sala Consilina (SA)

8,00
320,93
0
€ 109.277
Vendita all'asta Senza incanto, con gara telematica asincrona - LOTTO 2: Appartamento. Prezzo base € 109.277,43 (offerta minima € 81.958,08). Data inizio operazioni di vendita: 05/05/2026 ore 18:00. Professionista delegato alla vendita Avv. Igino Cappelli - Email "info@avvocatoiginocappelli.it". Custode Giudiziario Dott. Giampiero Petracca - Email "studio.petracca@tiscali.it"; Cell. 3803496331. Rif. Tribunale di Lagonegro - Esecuzione immobiliare post legge 80 n. 86/2013

Superficie 320,93 mq
Vani 8,00
Bagni
Piano 0

Tipologia di vendita Giudiziaria
Modalità di vendita Asincrona telematica
Termine presentazione offerte 04/05/2026 ore 13:00
Data e ora inizio gara 05/05/2026 ore 18:00
Codice ID astegiudiziarie.it 4332057
8,00
320,93
0
€ 109.277

Ti interessa questa vendita?

north_east

Clicca qui per essere indirizzato alla scheda sul sito di provenienza

Bene di astegiudiziarie.it