highlight_off
Riferimento annuncio 277116 info

Appartamento Localita' La Cantina, 11010 Saint-Rhémy-en-Bosses (AO)

10,00
183,00
0
€ 84.600
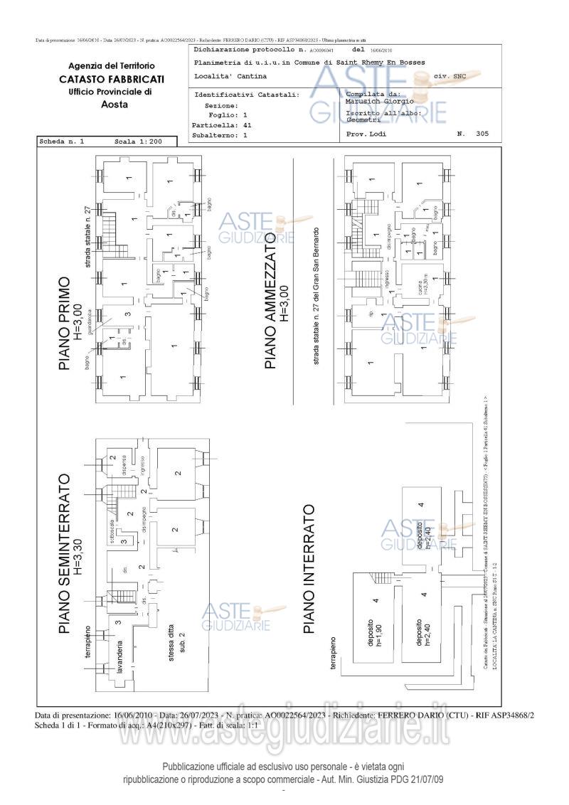
Vendita all'asta Senza incanto, con gara telematica sincrona mista - LOTTO UNICO: Unità immobiliari (sub. 1 e 2) in un fabbricato di 4 piani (due fuori terra lato strada statale, tre fuori terra lato opposto) a pianta rettangolare di superficie 183 mq ogni piano in fregio alla Strada Statale 27 del Gran San Bernardo (per la precisione al km. 30+500). Il fabbricato è particolarmente datato (si presume la costruzione risalente agli inizi del secolo scorso) ed in mediocri condizioni di manutenzione. Prezzo base € 84.600,00 (offerta minima € 63.450,00). Data vendita 12/12/2025 ore 09:30. Giudice Giulia De Luca. Professionista delegato alla vendita Avv. Filippo Vaccino. Custode Giudiziario Avv. Filippo Vaccino - Email "studiolegalevaccino@gmail.com"; Tel. 016541844. Rif. Tribunale di Aosta - Esecuzione immobiliare post legge 80 n. 37/2023

Superficie 183,00 mq
Vani 10,00
Bagni
Piano 0

Tipologia di vendita Giudiziaria
Modalità di vendita Sincrona mista
Termine presentazione offerte 01/01/1900 ore 00:00
Data e ora inizio gara 12/12/2025 ore 09:30
Codice ID astegiudiziarie.it 4306047
10,00
183,00
0
€ 84.600

Ti interessa questa vendita?

north_east

Clicca qui per essere indirizzato alla scheda sul sito di provenienza

Bene di astegiudiziarie.it