highlight_off
Riferimento annuncio 287494 info

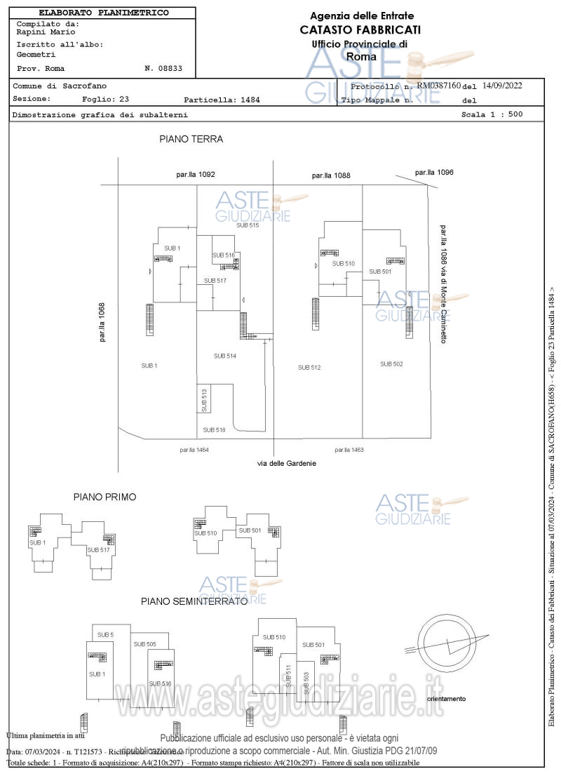
Appartamento Via delle Gardenie, 6, 00060 Monte Caminetto RM, Italia, 00060 Sacrofano (RM)

143,00
0
€ 97.500
Vendita all'asta Senza incanto, con gara telematica asincrona - LOTTO UNICO: Quota pari a 1/1 del diritto di piena ed intera proprietà di appartamento in villa, sviluppantesi al piano seminterrato e piano primo, con annesso portico e corte di pertinenza; Quota pari a 1/1 del diritto di piena ed intera proprietà di locale garage posto al piano seminterrato del suddetto compendio. Prezzo base € 97.500,00 (offerta minima € 73.125,00). Data inizio operazioni di vendita: 13/01/2026 ore 12:00. Giudice Francesco Lupia. Professionista delegato alla vendita Avv. Maria Clara Carolis - Email "mccarolis@tiscali.it"; Tel. 0774333045. Custode Giudiziario Ivg Di Roma Srl - Email "pvp@visiteivgroma.it"; Tel. 0689569801. Rif. Tribunale di Tivoli - Esecuzione immobiliare post legge 80 n. 171/2022

Superficie 143,00 mq
Vani
Bagni
Piano 0

Tipologia di vendita Giudiziaria
Modalità di vendita Asincrona telematica
Termine presentazione offerte 12/01/2026 ore 23:59
Data e ora inizio gara 13/01/2026 ore 12:00
Codice ID astegiudiziarie.it 4314028
143,00
0
€ 97.500

Ti interessa questa vendita?

north_east

Clicca qui per essere indirizzato alla scheda sul sito di provenienza

Bene di astegiudiziarie.it