highlight_off
Riferimento annuncio 143868 info

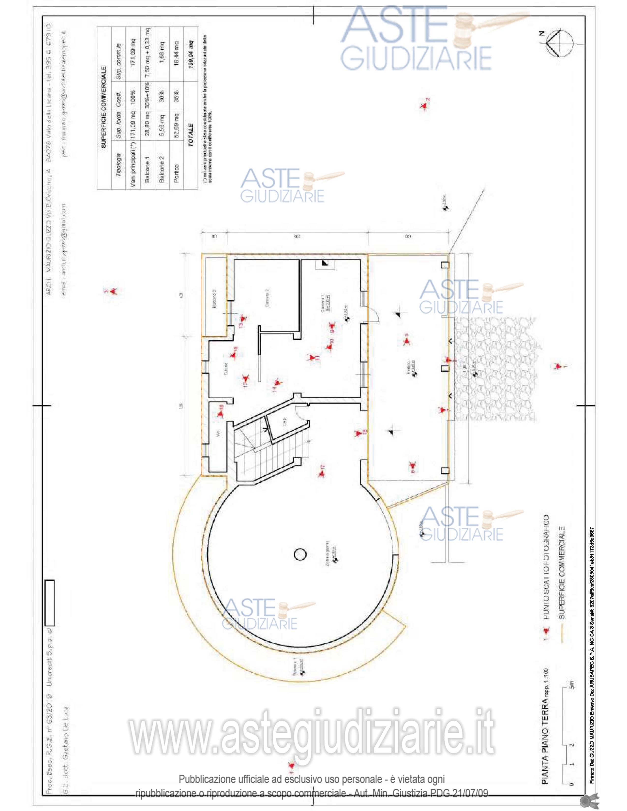
Appartamento Località Fornace, Via Ioncole, 1, 84070 Rutino (SA)

5,00
228,00
0
€ 65.790
Vendita in attesa dell'emissione del nuovo bando d'asta. LOTTO UNICO: - appartamento ubicato al piano terra di maggior fabbricato, composto da tre vani ed accessori, censito nel Catasto Fabbricatial foglio 3 particella 317 sub 3, categoria A/3, classe 3 ^- altro appartamento ubicato al piano primo del medesimo fabbricato in Rutino, composto da due vani ed accessori, censito nel Catasto Fabbricati al foglio 3 particella 317 sub 4, categoria A/3, classe 3 ^,. Ultimo prezzo base € 65.790,00 (offerta minima € 49.342,50). Professionista delegato alla vendita Dott. Francesco Manganiello. Custode Giudiziario Dott. Francesco Manganiello - Email "francesco.manganiello@hotmail.it"; Cell. 3939444110; Tel. 097472972. Rif. Tribunale di Vallo della Lucania - Esecuzione immobiliare post legge 80 n. 63/2019

Superficie 228,00 mq
Vani 5,00
Bagni
Piano 0

Tipologia di vendita Giudiziaria
Modalità di vendita Presso il venditore
Termine presentazione offerte 01/01/1900 ore 00:00
Data e ora inizio gara 06/11/2025 ore 11:00
Codice ID astegiudiziarie.it 4249527
5,00
228,00
0
€ 65.790

Ti interessa questa vendita?

north_east

Clicca qui per essere indirizzato alla scheda sul sito di provenienza

Bene di astegiudiziarie.it