highlight_off
Riferimento annuncio 323738 info

Appartamento Via Noicattaro, 168, 70018 Rutigliano (BA)

6,00
147,00
2
0
€ 162.000
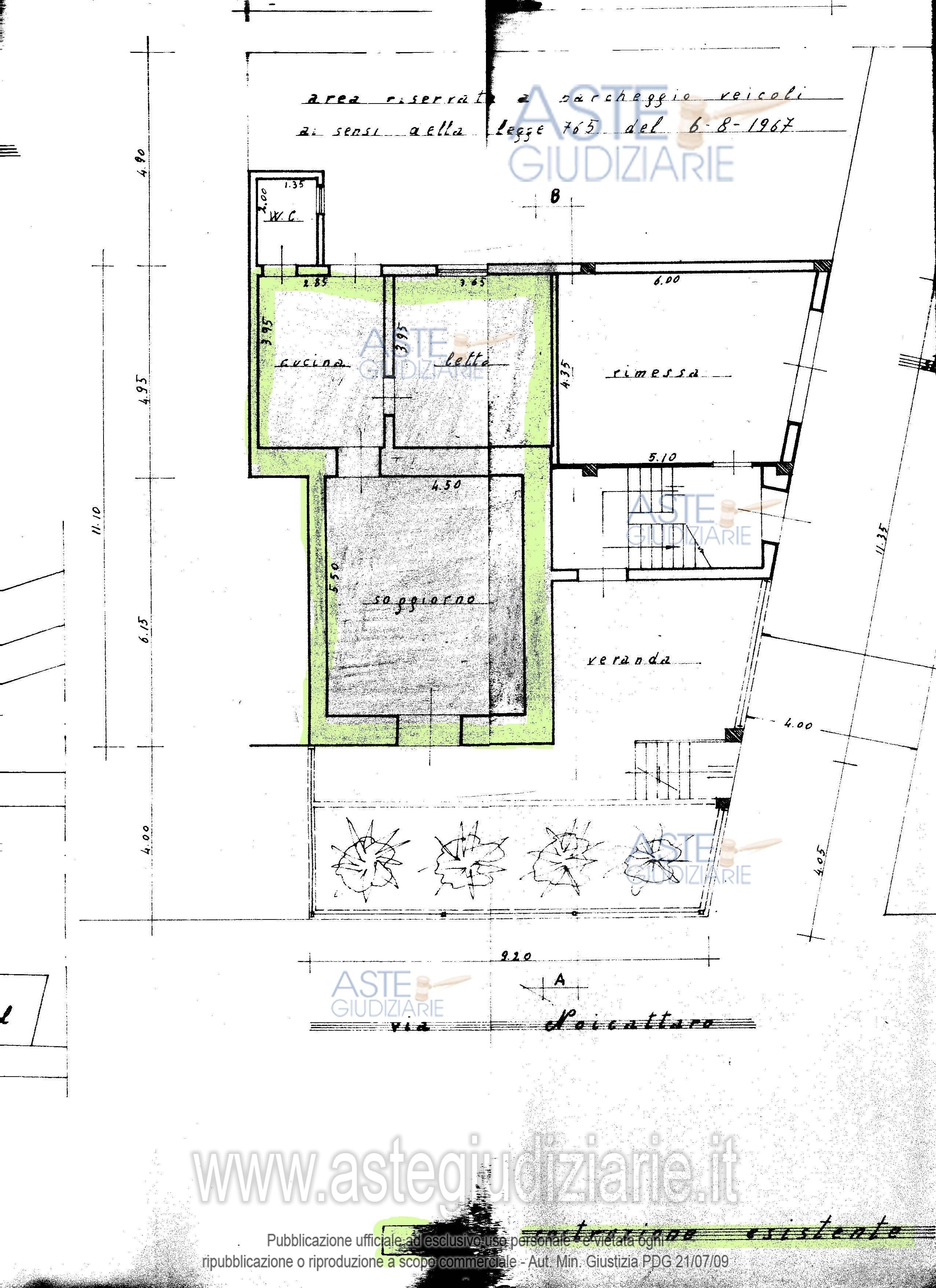
Vendita all'asta Senza incanto, con gara telematica asincrona - LOTTO 2: Nuda proprietà (1/1) dell’appartamento composto su due piani fuori terra e seminterrato, con accesso indipendente da stradina privata e da giardino pertinenziale, cucina e salottino a piano rialzato, con bagno; due stanze da letto a primo piano con affaccio su strada privata da balconi, con bagno; cantina a piano seminterrato con centrale termica (dismessa); lavatoio a secondo piano, con la restante parte a terrazzo. Prezzo base € 162.000,00 (offerta minima € 121.500,00). Data inizio operazioni di vendita: 14/05/2026 ore 10:00. Giudice Dott. Chiara Cutolo. Professionista delegato alla vendita Avv. Rosa Rella - Email "rossella_rella@yahoo.it". Custode Giudiziario Avv. Rosa Rella - Email "rossella_rella@yahoo.it". Rif. Tribunale di Bari - Espropriazione immobiliare (cartabia) n. 443/2024

Superficie 147,00 mq
Vani 6,00
Bagni 2
Piano 0

Tipologia di vendita Giudiziaria
Modalità di vendita Asincrona telematica
Termine presentazione offerte 01/01/1900 ore 00:00
Data e ora inizio gara 14/05/2026 ore 10:00
Codice ID astegiudiziarie.it 4343152
6,00
147,00
2
0
€ 162.000

Ti interessa questa vendita?

north_east

Clicca qui per essere indirizzato alla scheda sul sito di provenienza

Bene di astegiudiziarie.it