highlight_off
Riferimento annuncio 321108 info

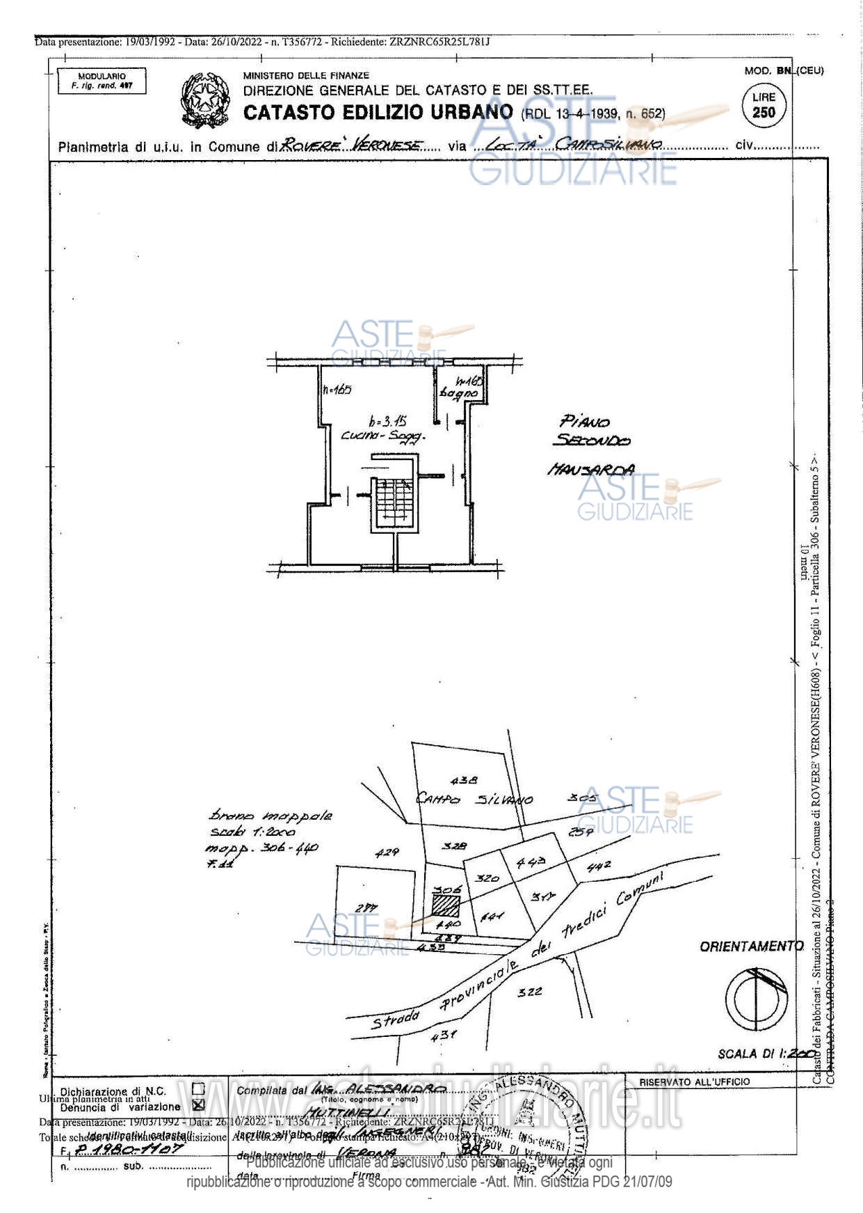
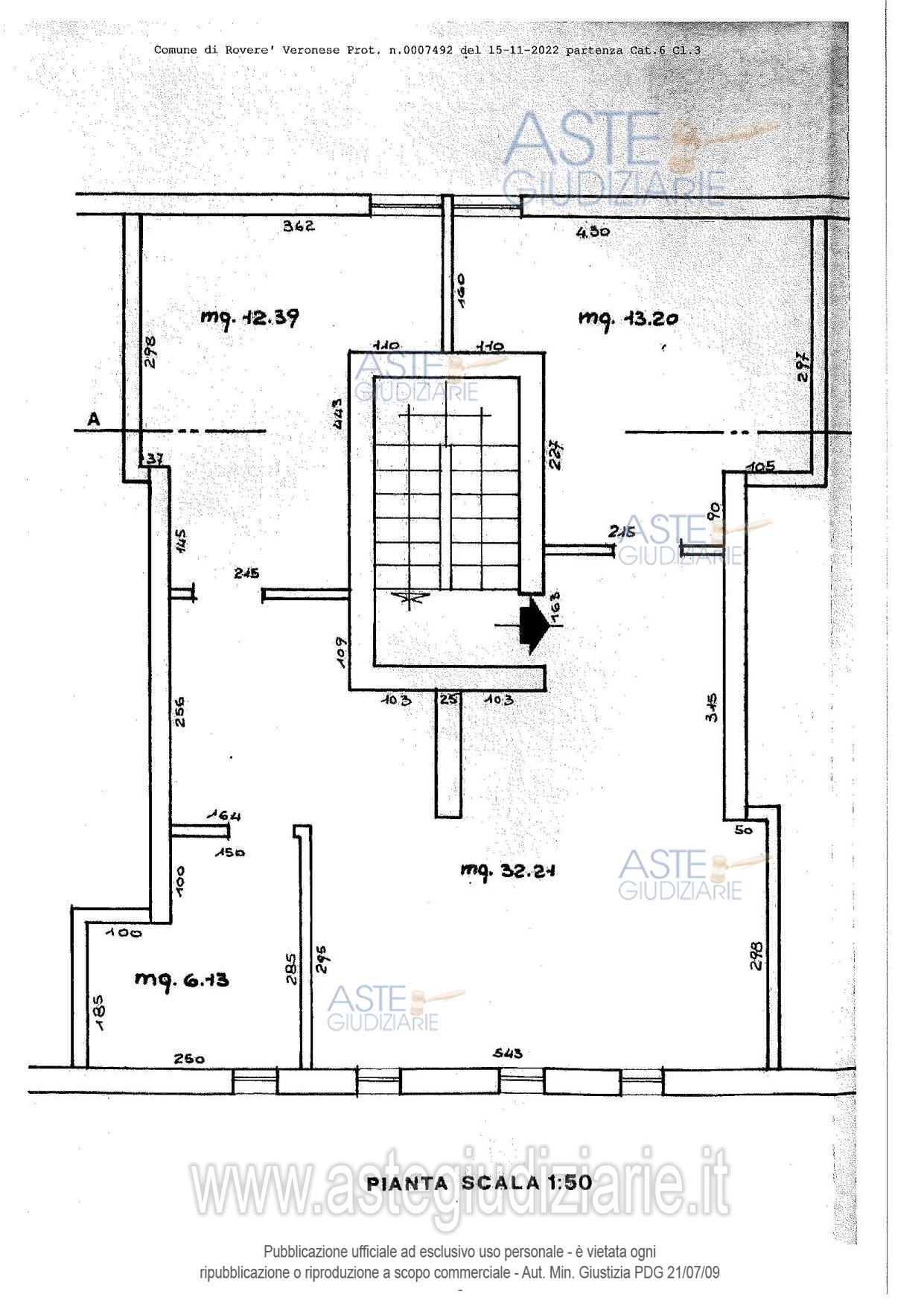
Appartamento frazione di Camposilvano, 37028 Roverè Veronese (VR)

0
€ 72.000
Vendita all'asta Senza incanto, con gara telematica sincrona mista - LOTTO 2: Lotto 2 (integrazione CTU 13.11.25) Roverè Veronese (VR) fraz. Camposilvano piena proprietà appartamento 2°piano in condominio (compresi i proporzionali diritti di comproprietà su enti e spazi comuni art.1117cc compresa area sedime e pertinenza fabbricato C.F. Roverè V.se Fg11mn306 ente urbano are08.46) e piena proprietà di terreno in continuità formato da zona edificabile“B-Area urbana di completamento edilizio”mq 419 e zona“E–territorio agricolo”ca.mq2185(complessivi 2604mq catastali). Prezzo base € 72.000,00 (offerta minima € 54.000,00). Data vendita 26/02/2026 ore 14:00. Giudice Paola Salmaso. Professionista delegato alla vendita Not. Melchiorre Saraceno - Email "notes@notariato.it"; Tel. 0458006661. Custode Giudiziario Avv. Massimo Adami - Email "massimo.adami@frattassociati.com"; Tel. 045591566. Rif. Tribunale di Verona - Esecuzione immobiliare post legge 80 n. 141/2022

Superficie mq
Vani
Bagni
Piano 0

Tipologia di vendita Giudiziaria
Modalità di vendita Sincrona mista
Termine presentazione offerte 01/01/1900 ore 00:00
Data e ora inizio gara 26/02/2026 ore 14:00
Codice ID astegiudiziarie.it 4340951
0
€ 72.000

Ti interessa questa vendita?

north_east

Clicca qui per essere indirizzato alla scheda sul sito di provenienza

Bene di astegiudiziarie.it