highlight_off
Riferimento annuncio 314827 info

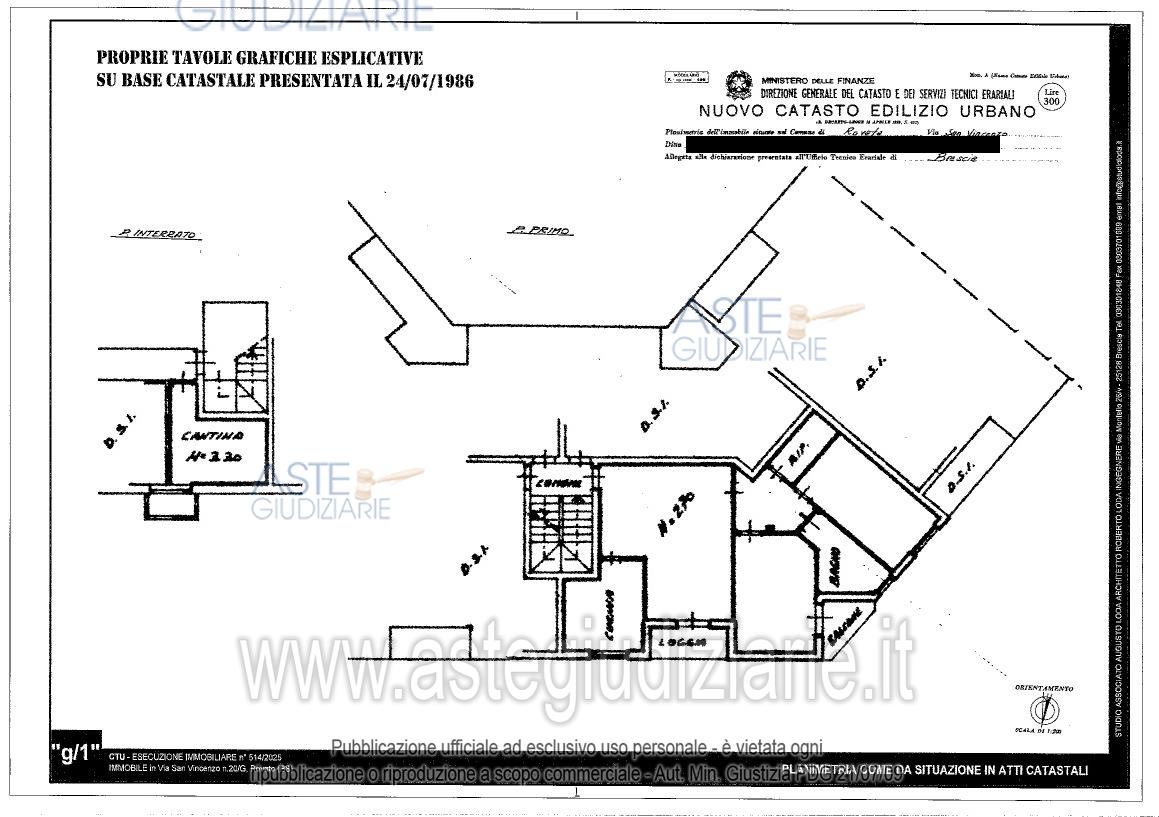
Appartamento Via San Vincenzo, 20/G, 25038 Rovato (BS)

0
€ 83.000
Vendita all'asta Senza incanto, con gara telematica asincrona - LOTTO UNICO: Piena proprietà di appartamento al piano primo composto da locale ingresso e sala con accesso ad un balcone, a destra vi è una cucina abitabile, due camere da letto bagno e ripostiglio., oltre a cantina al piano interrato. Occupato, ma è iniziata la liberazione dell'immobile. Prezzo base € 83.000,00 (offerta minima € 62.250,00). Data inizio operazioni di vendita: 11/11/2025 ore 12:00. Professionista delegato alla vendita Avv. Maurizio Zanelli - Email "zanellieassociati@gmail.com"; Tel. 03042209. Custode Giudiziario Avv. Maurizio Zanelli - Email "zanellieassociati@gmail.com"; Tel. 03042209. Rif. Tribunale di Brescia - Espropriazione immobiliare (cartabia) n. 514/2024

Superficie mq
Vani
Bagni
Piano 0

Tipologia di vendita Giudiziaria
Modalità di vendita Asincrona telematica
Termine presentazione offerte 01/01/1900 ore 00:00
Data e ora inizio gara 11/11/2025 ore 12:00
Codice ID astegiudiziarie.it 4336062
0
€ 83.000

Ti interessa questa vendita?

north_east

Clicca qui per essere indirizzato alla scheda sul sito di provenienza

Bene di astegiudiziarie.it