highlight_off
Riferimento annuncio 270260 info

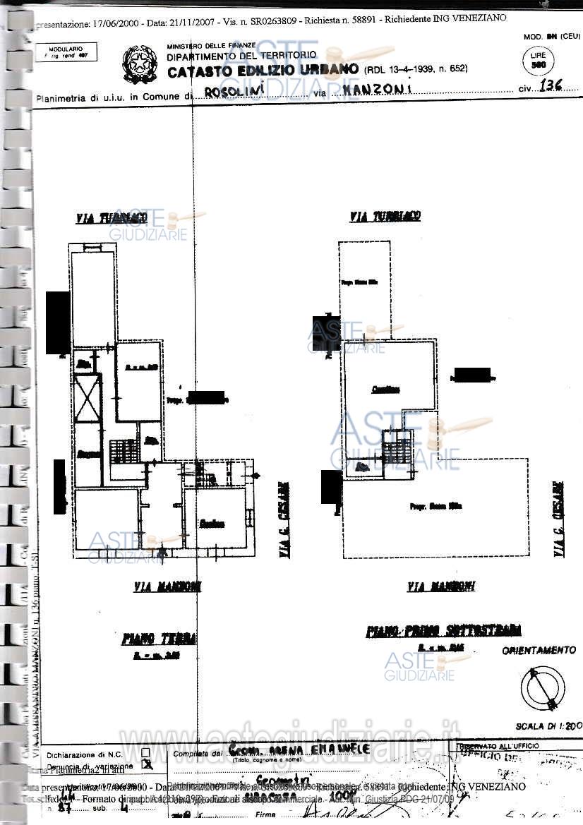
Appartamento via Manzoni n 142, angolo via Giulio Cesare, 96019 Rosolini (SR)

13,00
251,08
2
0
€ 123.703
Vendita all'asta Senza incanto, con gara telematica sincrona mista - LOTTO UNICO: Lotto 1 (lotto A in ctu) Descrizione del bene: quota di 1/1 della proprietà di immobile sito in Rosolini (Sr), via Manzoni n 142, angolo via Giulio Cesare con prospetto posteriore in via Turnaco, a due elevazioni fuori terra con piano sottostrada, distinto al Catasto Urbano al fl.44 p.lla 87: sub 4, cat. A/3, cons.6,5 vani, rend. Cat. € 553,90, p. T-S-1; sub 5 cat. A/3, cons.6,5 vani, rend. Cat. € 553,90, p.1; sub 6, cat C/6, classe 3 cons.20mq., rend. Cat. € 90,90 p. T. Prezzo base € 123.702,75 (offerta minima € 92.777,06). Data vendita 03/03/2026 ore 12:00. Professionista delegato alla vendita Avv. Carmelo Cataudella - Email "avvcataudellacarmelo@libero.it"; Cell. 3474804725; Tel. 0931449210. Rif. Tribunale di Siracusa - Contenzioso civile n. 6397/2016

Superficie 251,08 mq
Vani 13,00
Bagni 2
Piano 0

Tipologia di vendita Giudiziaria
Modalità di vendita Sincrona mista
Termine presentazione offerte 02/03/2026 ore 12:00
Data e ora inizio gara 03/03/2026 ore 12:00
Codice ID astegiudiziarie.it 4300726
13,00
251,08
2
0
€ 123.703

Ti interessa questa vendita?

north_east

Clicca qui per essere indirizzato alla scheda sul sito di provenienza

Bene di astegiudiziarie.it