highlight_off
Riferimento annuncio 295728 info

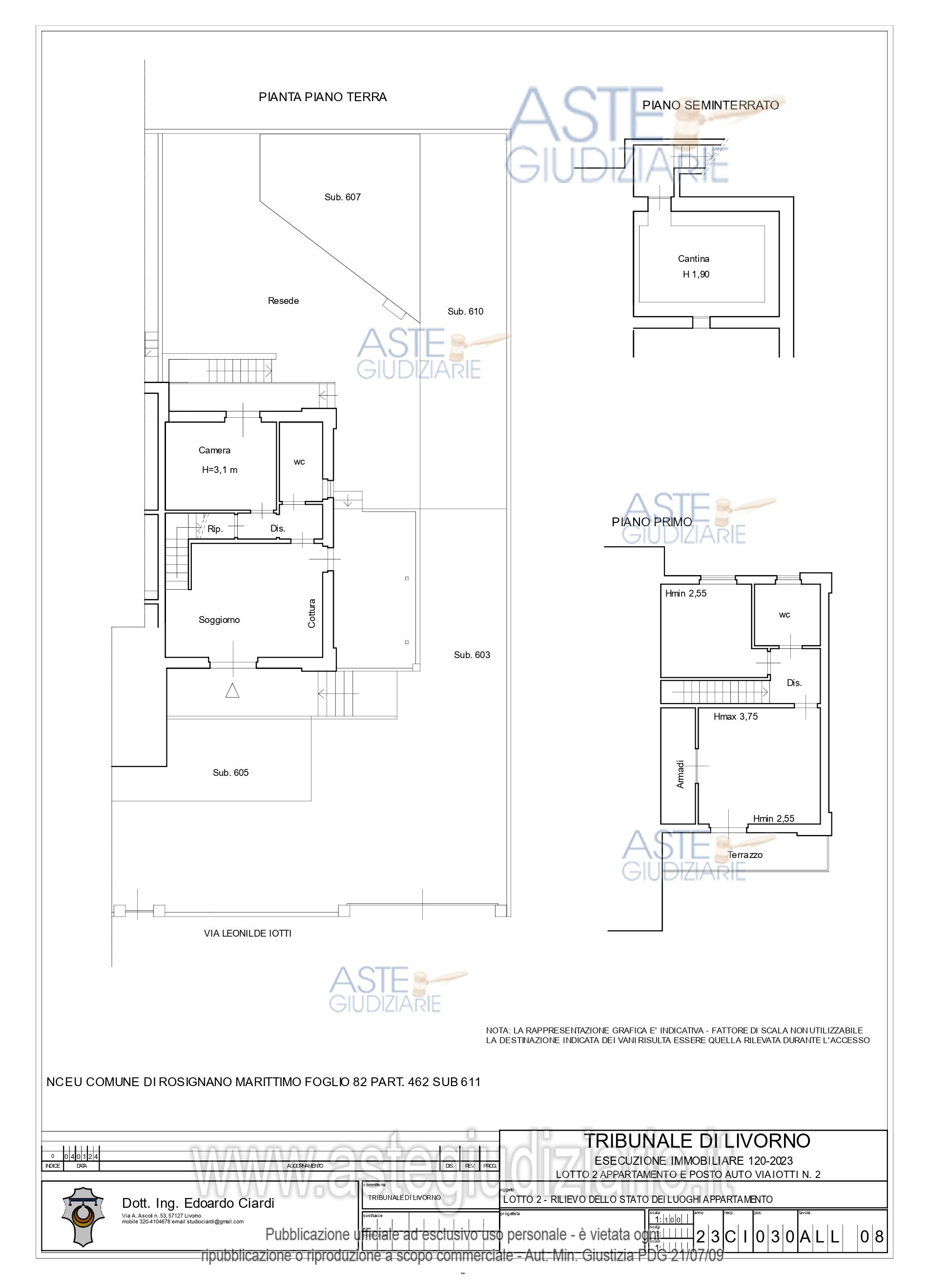
Appartamento Via Nilde Iotti, 2, 57016 Rosignano Solvay-Castiglioncello LI, Italia, 57016 Rosignano Marittimo (LI)

7,00
12724,00
1
0
€ 157.500
Vendita in attesa dell'emissione del nuovo bando d'asta. LOTTO 2: Appartamento ad uso civile abitazione dislocato sui piani seminterrato, terreno e primo con posto auto scoperto al piano terreno e resede esclusivo. Ultimo prezzo base € 157.500,00 (offerta minima € 118.125,00). Giudice Dott. Simona Capurso. Professionista delegato alla vendita Not. Valentina Andreini - Email "valentina.andreini@postacertificata.notariato.it"; Tel. 0586829830. Custode Giudiziario Istituto Vendite Giudiziarie Di Pisa - Email "prenotazionilivorno@astagiudiziaria.com". Rif. Tribunale di Livorno - Espropriazione immobiliare (cartabia) n. 120/2023

Superficie 12724,00 mq
Vani 7,00
Bagni 1
Piano 0

Tipologia di vendita Giudiziaria
Modalità di vendita Asincrona telematica
Termine presentazione offerte 01/01/1900 ore 00:00
Data e ora inizio gara 07/10/2025 ore 11:00
Codice ID astegiudiziarie.it 4320547
7,00
12724,00
1
0
€ 157.500

Ti interessa questa vendita?

north_east

Clicca qui per essere indirizzato alla scheda sul sito di provenienza

Bene di astegiudiziarie.it