highlight_off
Riferimento annuncio 315836 info

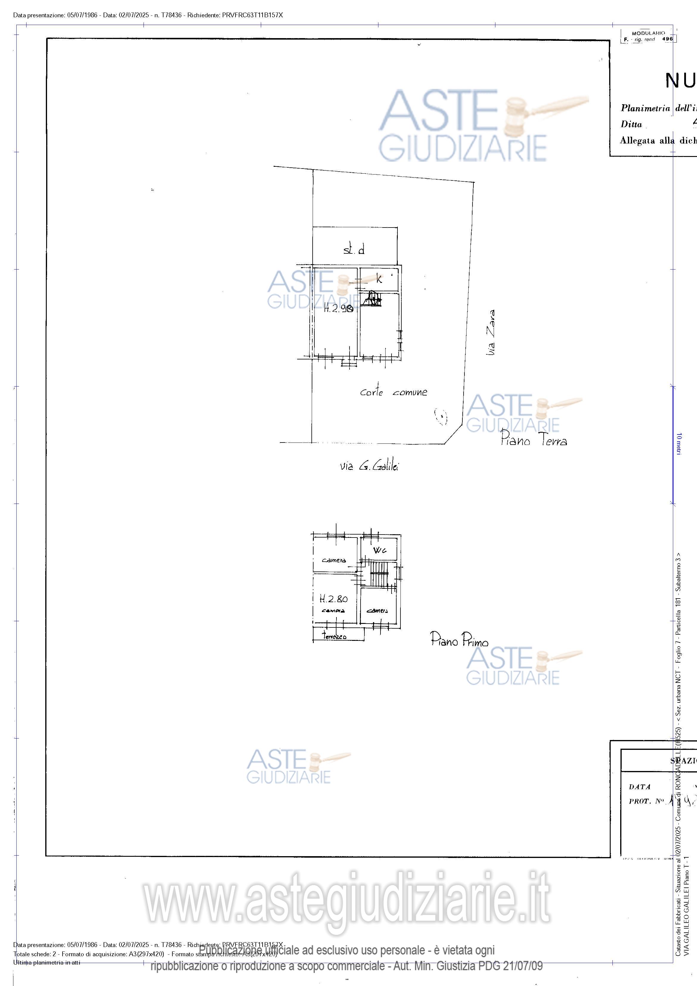
Appartamento Via Galileo Galilei, 57, 25030 Roncadelle (BS)

0
€ 145.000
Vendita all'asta Senza incanto, con gara telematica asincrona - LOTTO UNICO: Piena proprietà di unità immobiliare indipendente in edificio popolare bifamiliare, sviluppantesi su vari livelli, con relativa area pertinenziale. Prezzo base € 145.000,00 (offerta minima € 108.750,00). Data inizio operazioni di vendita: 12/12/2025 ore 14:00. Professionista delegato alla vendita Avv. Francesco Vanzo - Email "francesco.vanzo@vanzo-bs.191.it"; Tel. 0302422679. Custode Giudiziario Avv. Francesco Vanzo - Email "francesco.vanzo@vanzo-bs.191.it"; Tel. 0302422679. Rif. Tribunale di Brescia - Contenzioso civile n. 8111/2023

Superficie mq
Vani
Bagni
Piano 0

Tipologia di vendita Giudiziaria
Modalità di vendita Asincrona telematica
Termine presentazione offerte 01/01/1900 ore 00:00
Data e ora inizio gara 12/12/2025 ore 14:00
Codice ID astegiudiziarie.it 4336809
0
€ 145.000

Ti interessa questa vendita?

north_east

Clicca qui per essere indirizzato alla scheda sul sito di provenienza

Bene di astegiudiziarie.it