highlight_off
Riferimento annuncio 297035 info

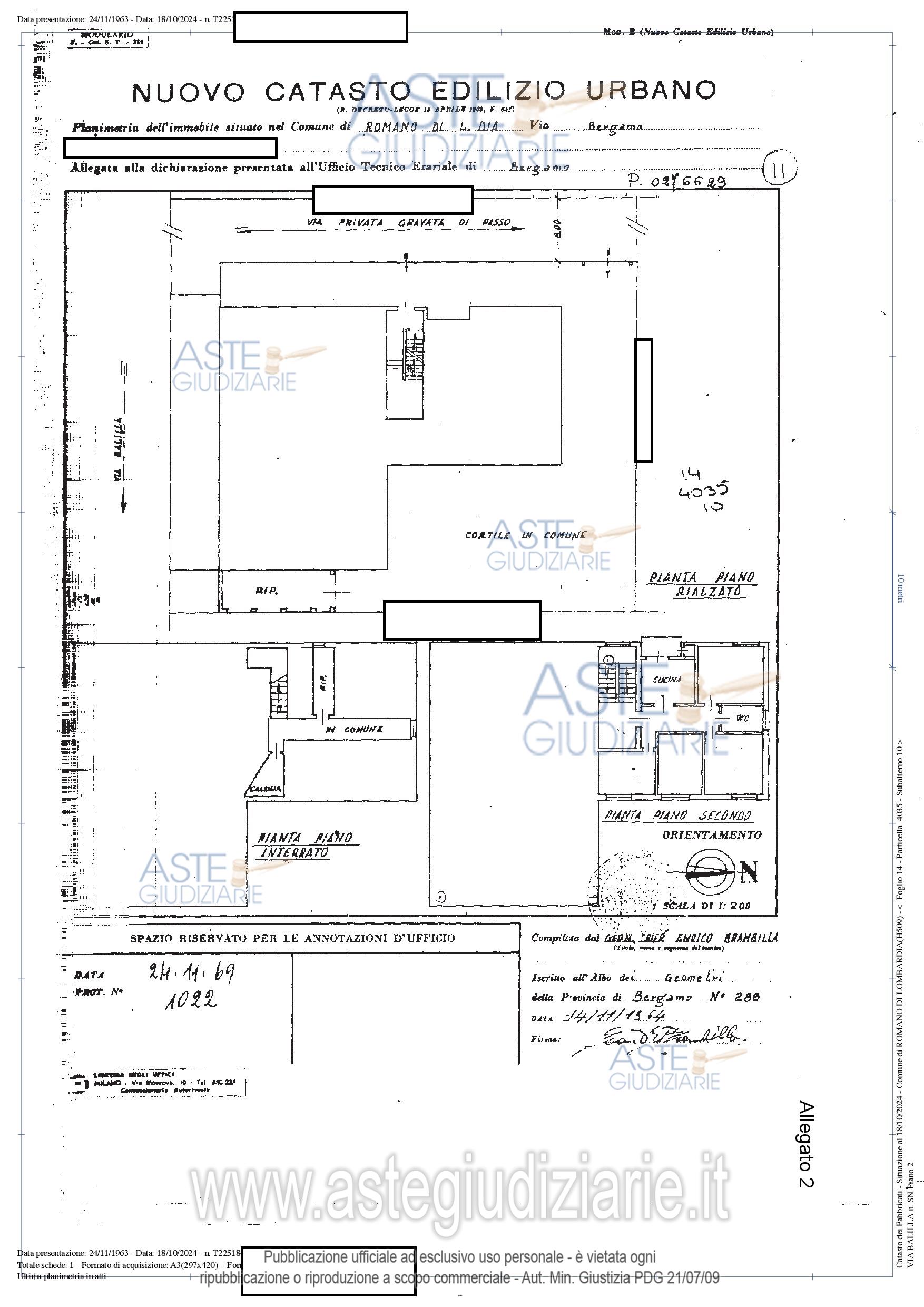
Appartamento Vicolo Algisio da Romano, 2, 24058 Romano di Lombardia (BG)

6,50
2
€ 62.541
Vendita all'asta Senza incanto, con gara telematica asincrona - LOTTO UNICO: Piena proprietà, quota intera, di abitazione di tipo economico al piano secondo oltre a due ripostigli. L’appartamento è costituito da cucina, soggiorno, bagno, tre camere, disimpegno oltre ad un balcone con ripostiglio esterno. Al piano rialzato è presente un ripostiglio e al piano interrato è presente un altro ripostiglio. Prezzo base € 62.540,94 (offerta minima € 46.905,71). Data inizio operazioni di vendita: 08/01/2026 ore 15:00. Giudice Angela Randazzo. Professionista delegato alla vendita Avv. Claudia Badon - Email "avv.claudia.badon@tin.it"; Tel. 0350634961. Custode Giudiziario Dott. Luigi Gaffuri - Email "luigi@studiogaffuri.net"; Tel. 035232207. Rif. Tribunale di Bergamo - Espropriazione immobiliare (cartabia) n. 176/2023

Superficie mq
Vani 6,50
Bagni
Piano 2

Tipologia di vendita Giudiziaria
Modalità di vendita Asincrona telematica
Termine presentazione offerte 01/01/1900 ore 00:00
Data e ora inizio gara 08/01/2026 ore 15:00
Codice ID astegiudiziarie.it 4321503
6,50
2
€ 62.541

Ti interessa questa vendita?

north_east

Clicca qui per essere indirizzato alla scheda sul sito di provenienza

Bene di astegiudiziarie.it