highlight_off
Riferimento annuncio 329788 info

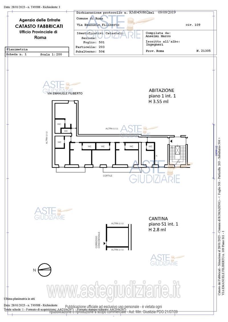
Appartamento Via Emanuele Filiberto, 109, 00100 Roma (RM)

12,50
279,00
4
2
€ 1.206.000
Vendita all'asta Senza incanto, con gara telematica asincrona - LOTTO UNICO: Quota pari a 1/1 del diritto di proprietà su appartamento sito in Roma, Via Emanuele Filiberto n. 109, piano secondo (catastalmente indicato come primo), int. 4, composto da ingresso, studio, salone di rappresentanza, soggiorno, quattro camere, quattro bagni, disimpegni, cucina, lavanderia, due ripostigli e un balcone, per complessivi mq. 278,00 di superficie lorda , con annessa cantina pertinenziale posta al piano seminterrato (S1) di mq. 20,00 di superficie lorda. Prezzo base € 1.206.000,00 (offerta minima € 904.500,00). Data inizio operazioni di vendita: 12/05/2026 ore 15:00. Giudice Federica D'ambrosio. Professionista delegato alla vendita Avv. Maria Gualtieri. Custode Giudiziario Ivg Di Roma - Email "pvp@visiteivgroma.it"; Tel. 0689569801. Rif. Tribunale di Roma - Esecuzione immobiliare post legge 80 n. 761/2022

Superficie 279,00 mq
Vani 12,50
Bagni 4
Piano 2

Tipologia di vendita Giudiziaria
Modalità di vendita Asincrona telematica
Termine presentazione offerte 11/05/2026 ore 23:59
Data e ora inizio gara 12/05/2026 ore 15:00
Codice ID astegiudiziarie.it 4343932
12,50
279,00
4
2
€ 1.206.000

Ti interessa questa vendita?

north_east

Clicca qui per essere indirizzato alla scheda sul sito di provenienza

Bene di astegiudiziarie.it