highlight_off
Riferimento annuncio 326766 info

Appartamento Via Monza, 9, 00182 Roma RM, Italia, 00100 Roma (RM)

3,50
75,00
1
2
€ 274.000
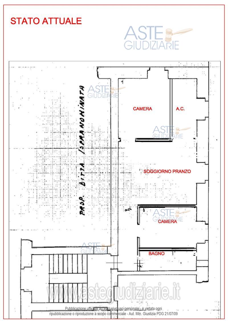
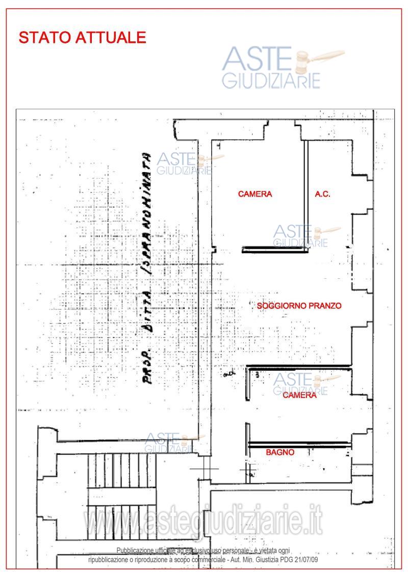
Vendita all'asta Senza incanto, con gara telematica asincrona - LOTTO UNICO: Quota pari a 1/1 del diritto di piena proprietà su immobile sito in Roma, via Monza n. 9 – facenteparte del Fabbricato denominato “Fabbricato 3” e precisamente: appartamento posto al pianoprimo rialzato (in catasto piano secondo) della scala “C”, distinto con il numero interno 3,composto di due camere, cameretta ed accessori, per complessivi mq. 75. Prezzo base € 274.000,00 (offerta minima € 205.500,00). Data inizio operazioni di vendita: 14/07/2026 ore 10:00. Giudice: Russo. Professionista delegato alla vendita: Avv. Emanuele Pica. Custode Giudiziario: I.V.G Di Roma S.R.L. Istituto Vendite Giudiziarie - Email "pvp@visiteivgroma.it"; Tel. 06/83751500. Rif. Tribunale di Roma - Espropriazione immobiliare (cartabia) n. 977/2024

Superficie 75,00 mq
Vani 3,50
Bagni 1
Piano 2

Tipologia di vendita Giudiziaria
Modalità di vendita Asincrona telematica
Termine presentazione offerte 01/01/1900 ore 00:00
Data e ora inizio gara 14/07/2026 ore 10:00
Codice ID astegiudiziarie.it 4345348
3,50
75,00
1
2
€ 274.000

Ti interessa questa vendita?

north_east

Clicca qui per essere indirizzato alla scheda sul sito di provenienza

Bene di astegiudiziarie.it