highlight_off
Riferimento annuncio 319409 info

Appartamento Via Francesco Menzio, 30, 00125 Roma RM, Italia, 00100 Roma (RM)

4,00
99,00
2
9
€ 120.600
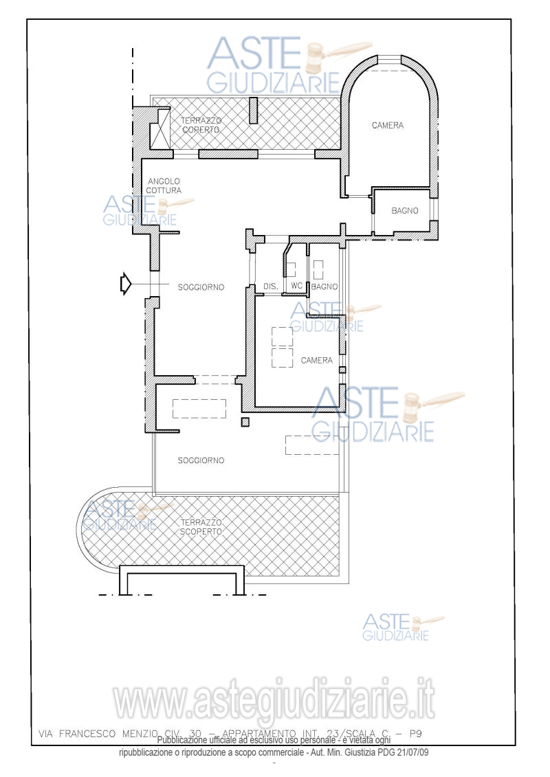
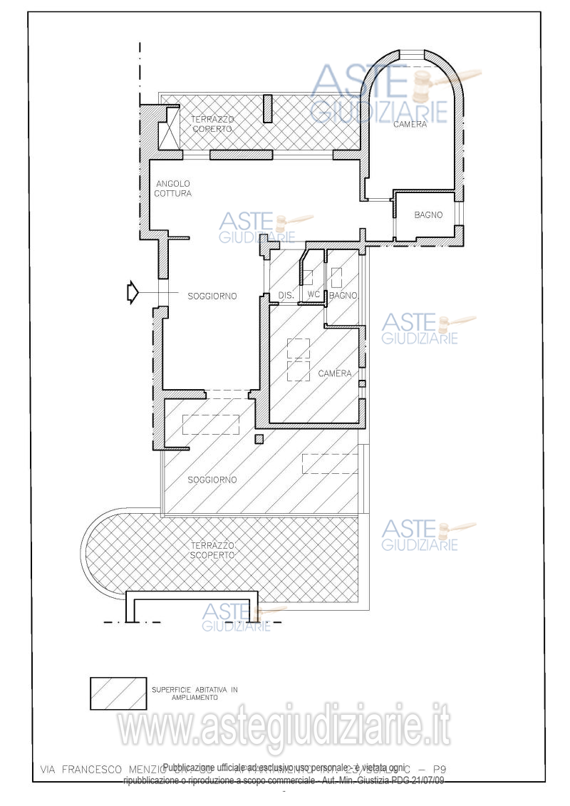
Vendita all'asta Senza incanto, con gara telematica asincrona - LOTTO UNICO: 100% proprietà di porzioni immobiliari del fabbricato "S4" compreso nel complesso "LE TERRAZZE DEL PRESIDENTE", in Roma, località Acilia, Via Francesco Menzio n. 30, e precisamente:- unità immobiliare ad uso civile abitazione posta al piano 9 (attico) della scala C, catastalmente composta da: ingresso/disimpegno con finestra, soggiorno con angolo cottura con terrazzo, un piccolo disimpegno, un bagno e a una camera, una camera con un grande terrazzo su due lati; - posto auto scoperto al piano terra. Prezzo base € 120.600,00 (offerta minima € 90.450,00). Data inizio operazioni di vendita: 20/01/2026 ore 15:00. Giudice Dott. Stefania Merola. Professionista delegato alla vendita Avv. Angela Maria Lorena Cordaro. Custode Giudiziario Ivg Di Roma Srl - Email "pvp@visiteivgroma.it"; Tel. 0683751500. Rif. Tribunale di Roma - Esecuzione immobiliare post legge 80 n. 1281/2021

Superficie 99,00 mq
Vani 4,00
Bagni 2
Piano 9

Tipologia di vendita Giudiziaria
Modalità di vendita Asincrona telematica
Termine presentazione offerte 19/01/2026 ore 23:59
Data e ora inizio gara 20/01/2026 ore 15:00
Codice ID astegiudiziarie.it 4337970
4,00
99,00
2
9
€ 120.600

Ti interessa questa vendita?

north_east

Clicca qui per essere indirizzato alla scheda sul sito di provenienza

Bene di astegiudiziarie.it