highlight_off
Riferimento annuncio 319289 info

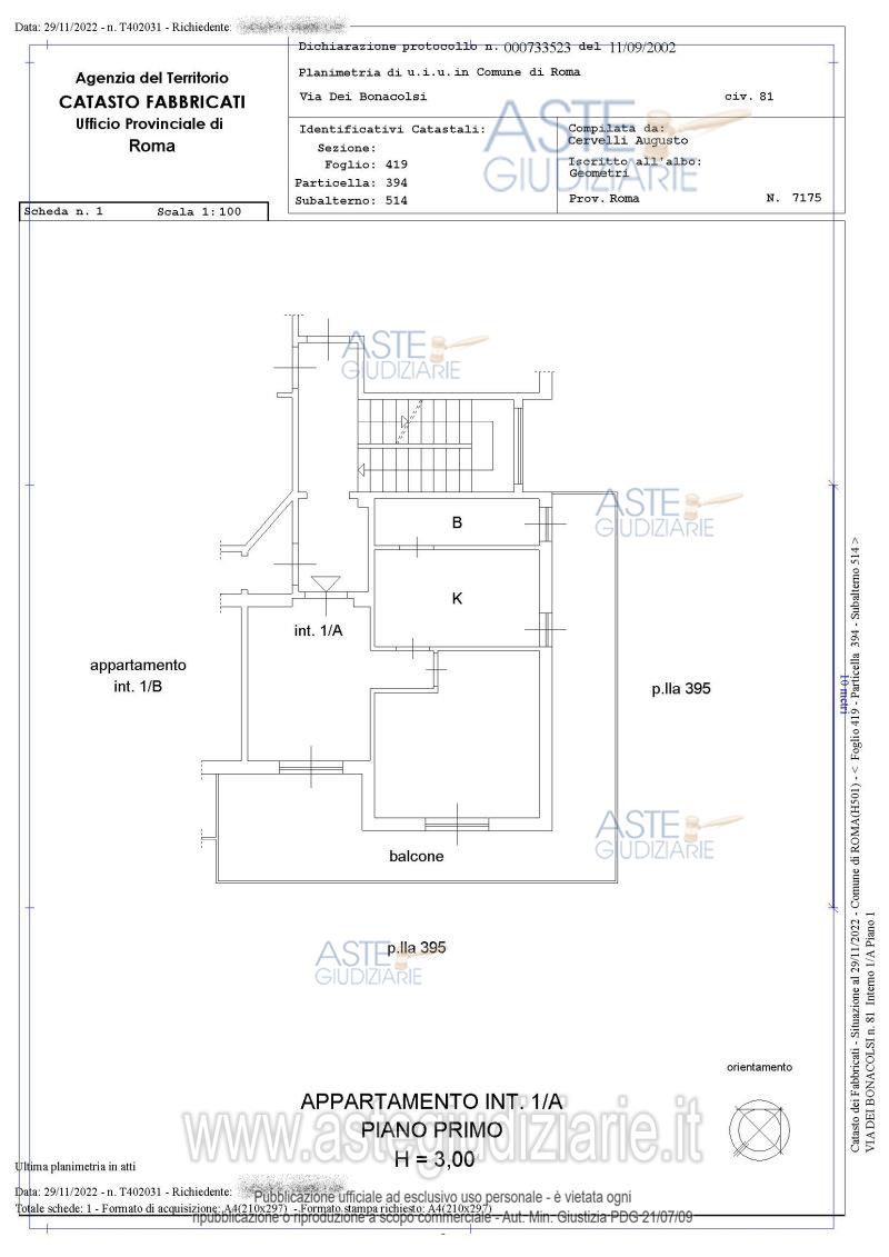
Appartamento Via dei Bonacolsi, 81, 00163 Roma RM, Italia, 00100 Roma (RM)

3,50
47,00
1
1
€ 146.047
Vendita all'asta Senza incanto, con gara telematica asincrona - LOTTO 6: Bene N° 7 in perizia - quota pari 1/1 del diritto di piena proprietà su Appartamento ubicato a Roma (RM) - via dei Bonacolsi 81, interno 1/A, piano 1. Prezzo base € 146.047,00 (offerta minima € 109.535,25). Data inizio operazioni di vendita: 20/01/2026 ore 09:00. Giudice D'ambrosio. Professionista delegato alla vendita Avv. Claudio Nicolais. Custode Giudiziario Ivg Di Roma Srl - Email "pvp@visiteivgroma.it"; Tel. 0689569801. Rif. Tribunale di Roma - Esecuzione immobiliare post legge 80 n. 63/2021

Superficie 47,00 mq
Vani 3,50
Bagni 1
Piano 1

Tipologia di vendita Giudiziaria
Modalità di vendita Asincrona telematica
Termine presentazione offerte 01/01/1900 ore 00:00
Data e ora inizio gara 20/01/2026 ore 09:00
Codice ID astegiudiziarie.it 4339168
3,50
47,00
1
1
€ 146.047

Ti interessa questa vendita?

north_east

Clicca qui per essere indirizzato alla scheda sul sito di provenienza

Bene di astegiudiziarie.it