highlight_off
Riferimento annuncio 316232 info

Appartamento Via Cardinale Luigi Traglia, 85, 00132 Roma RM, Italia, 00100 Roma (RM)

6,00
127,00
2
3
€ 148.640
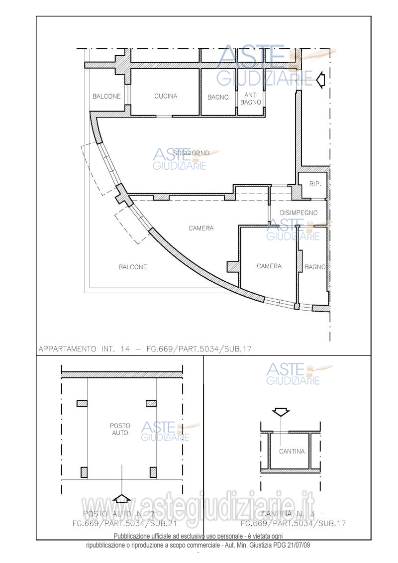
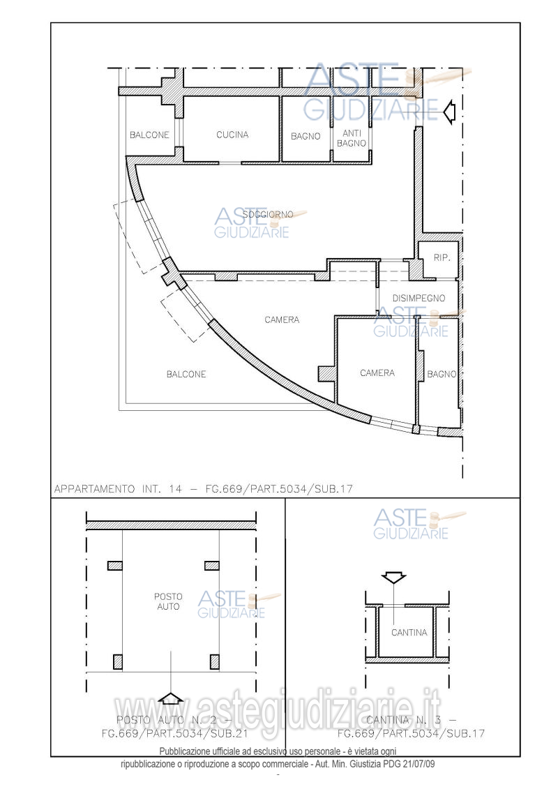
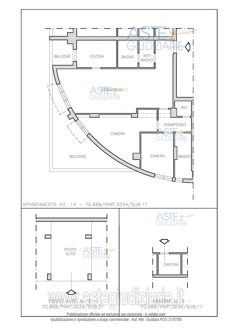
Vendita all'asta Senza incanto, con gara telematica asincrona - LOTTO 2: Quota pari a 1/1 del diritto di proprietà superficiaria ex art. 35 L. 865/1971 per la durata di 99 anni rinnovabili, su porzioni di fabbricato condominiale sito in Roma, Via Cardinale Luigi Traglia n. 85 (pedonale) e 89 (carrabile), e precisamente:- unità immobiliare ad uso civile abitazione posta al piano 3-S1, catastalmente composta da: ingresso/soggiorno, disimpegni, due bagni, cucina, due ripostigli, due camere e due balconi;- annessa cantina al piano S1- posto auto coperto. Prezzo base € 148.640,00 (offerta minima € 111.480,00). Data inizio operazioni di vendita: 19/02/2026 ore 14:00. Giudice Dott. Romolo Ciufolini. Professionista delegato alla vendita Not. Natale Votta. Custode Giudiziario Ivg Di Roma S.R.L. - Email "pvp@visiteivgroma.it"; Tel. 0683751500. Rif. Tribunale di Roma - Esecuzione immobiliare post legge 80 n. 17/2023

Superficie 127,00 mq
Vani 6,00
Bagni 2
Piano 3

Tipologia di vendita Giudiziaria
Modalità di vendita Asincrona telematica
Termine presentazione offerte 01/01/1900 ore 00:00
Data e ora inizio gara 19/02/2026 ore 14:00
Codice ID astegiudiziarie.it 4337086
6,00
127,00
2
3
€ 148.640

Ti interessa questa vendita?

north_east

Clicca qui per essere indirizzato alla scheda sul sito di provenienza

Bene di astegiudiziarie.it