highlight_off
Riferimento annuncio 315339 info

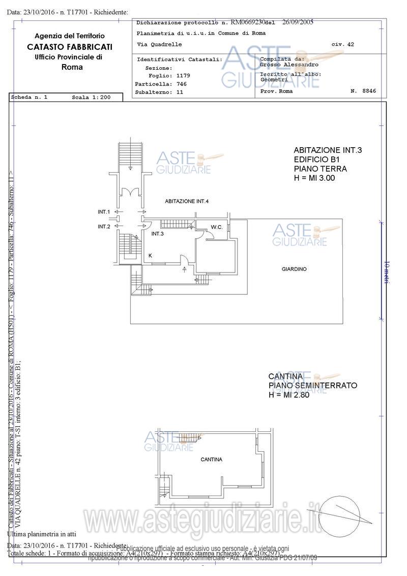
Appartamento Via Quadrelle n 42, 00100 Roma (RM)

4,00
105,60
1
0
€ 128.352
Vendita all'asta Senza incanto, con gara telematica asincrona - LOTTO UNICO: quota 1/1 del diritto di piena proprietà del compendio immobiliare consistente in un appartamento composto al piano terra da soggiorno, con annesso angolo cottura, camera, bagno, disimpegno, area pertinenziale a giardino, al piano seminterrato, con destinazione d’uso a cantina, da soggiorno, due camere, bagno, disimpegni, ripostiglio e in un posto auto scoperto, posto al piano terra, situato presso l’area antistante l’ingresso del fabbricato identificato con il n. 20. Prezzo base € 128.352,00 (offerta minima € 96.264,00). Data inizio operazioni di vendita: 11/02/2026 ore 14:00. Giudice D'ambrosio. Professionista delegato alla vendita Avv. Barbara Stanchi - Tel. 063722800. Custode Giudiziario Ivg Di Roma Srl - Email "pvp@visiteivgroma.it". Rif. Tribunale di Roma - Esecuzione immobiliare post legge 80 n. 1071/2014

Superficie 105,60 mq
Vani 4,00
Bagni 1
Piano 0

Tipologia di vendita Giudiziaria
Modalità di vendita Asincrona telematica
Termine presentazione offerte 10/02/2026 ore 23:59
Data e ora inizio gara 11/02/2026 ore 14:00
Codice ID astegiudiziarie.it 4217675
4,00
105,60
1
0
€ 128.352

Ti interessa questa vendita?

north_east

Clicca qui per essere indirizzato alla scheda sul sito di provenienza

Bene di astegiudiziarie.it