highlight_off
Riferimento annuncio 313639 info

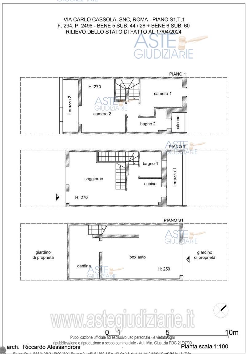
Appartamento Via Carlo Cassola, 00131 Roma RM, Italia, 00100 Roma (RM)

6,00
87,00
2
0
€ 140.800
Vendita all'asta Senza incanto, con gara telematica asincrona - LOTTO 2: Villetta in Roma (RM) - Via Carlo Cassola snc, interno 2, piano S1 - T - 1 sviluppantesi su 3 livelli con annessi due giardini di proprietà (giardino anteriore e posteriore). Con Garage interno 2, piano S1; Posto auto interno 10, piano T; Posto moto o bici interno E, piano T. Il tutto per una superficie convenzionale complessiva di mq. 102,81 circa (Villetta e giardino); mq. 7,75 circa (garage); mq. 2,60 circa (posto auto); 0,80 circa (posto moto o bici). Prezzo base € 140.800,00 (offerta minima € 105.600,00). Data inizio operazioni di vendita: 21/01/2026 ore 10:00. Giudice Iappelli. Professionista delegato alla vendita Avv. Roberto Tartaglia. Custode Giudiziario Ivg Di Roma Srl - Email "pvp@visiteivgroma.it"; Tel. 0689569801. Rif. Tribunale di Roma - Espropriazione immobiliare (cartabia) n. 747/2023

Superficie 87,00 mq
Vani 6,00
Bagni 2
Piano 0

Tipologia di vendita Giudiziaria
Modalità di vendita Asincrona telematica
Termine presentazione offerte 01/01/1900 ore 00:00
Data e ora inizio gara 21/01/2026 ore 10:00
Codice ID astegiudiziarie.it 4334688
6,00
87,00
2
0
€ 140.800

Ti interessa questa vendita?

north_east

Clicca qui per essere indirizzato alla scheda sul sito di provenienza

Bene di astegiudiziarie.it