highlight_off
Riferimento annuncio 310737 info

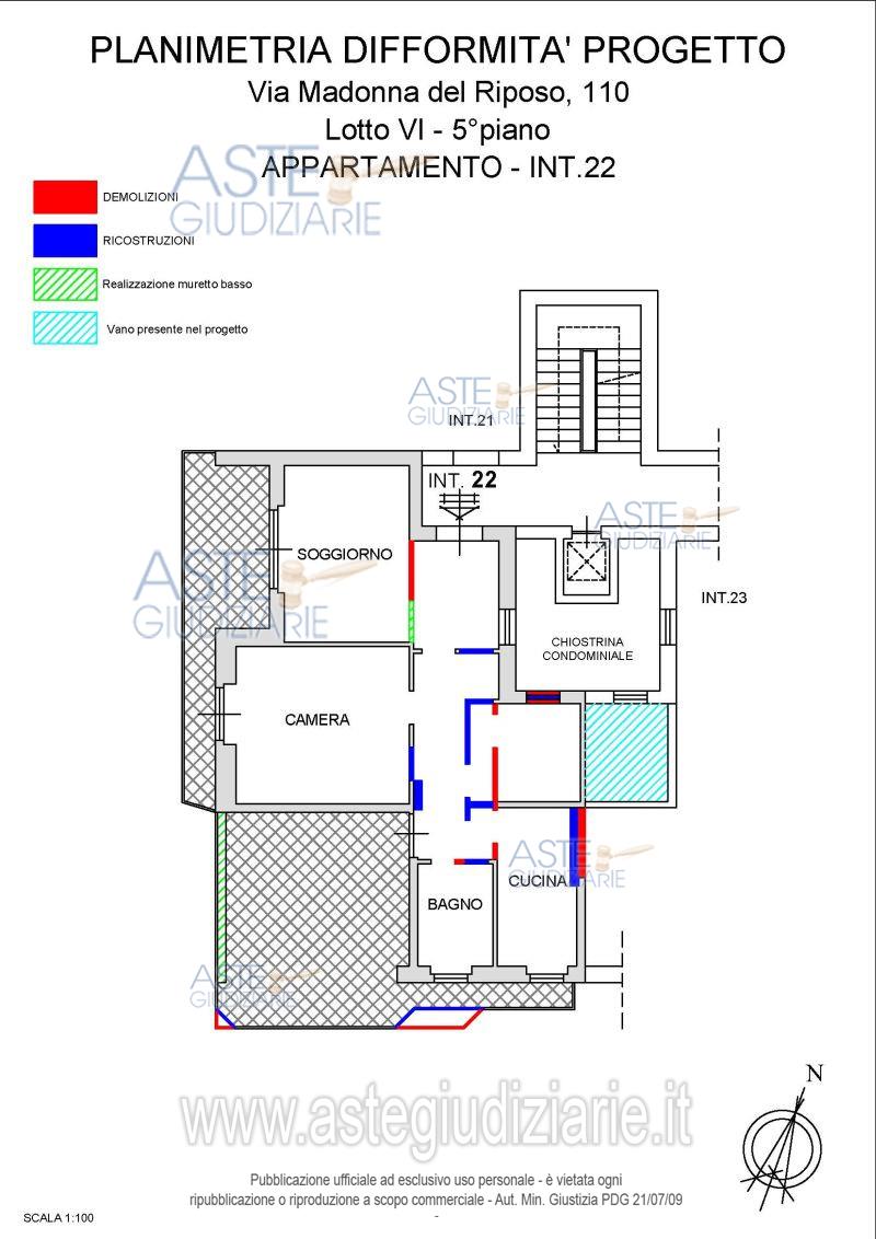
Appartamento Via della Madonna del Riposo, 110, 00165 Roma RM, Italia, 00100 Roma (RM)

4,00
80,62
1
5
€ 270.000
Vendita all'asta Senza incanto, con gara telematica asincrona - LOTTO UNICO: Piena proprietà per la quota di 1/1 di appartamento sito in Roma, Via della Madonna del Riposo n. 110, lotto VI, lettera B, interno 22, piano 5, con annessa soffitta sita in Roma, Via della Madonna del Riposo, lotto VI, interno 6, piano 6. Prezzo base € 270.000,00 (offerta minima € 202.500,00). Data inizio operazioni di vendita: 22/10/2025 ore 14:00. Giudice Dott. Fernando Scolaro. Professionista delegato alla vendita Avv. Barbara Schepis. Custode Giudiziario Istituto Vendite Giudiziarie Di Roma Srl - Email "pvp@visiteivgroma.it". Rif. Tribunale di Roma - Esecuzione immobiliare post legge 80 n. 980/2023

Superficie 80,62 mq
Vani 4,00
Bagni 1
Piano 5

Tipologia di vendita Giudiziaria
Modalità di vendita Asincrona telematica
Termine presentazione offerte 01/01/1900 ore 00:00
Data e ora inizio gara 22/10/2025 ore 14:00
Codice ID astegiudiziarie.it 4322522
4,00
80,62
1
5
€ 270.000

Ti interessa questa vendita?

north_east

Clicca qui per essere indirizzato alla scheda sul sito di provenienza

Bene di astegiudiziarie.it