highlight_off
Riferimento annuncio 310099 info

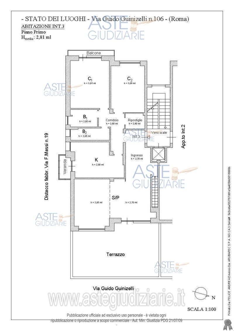
Appartamento Via Guido Guinizelli, 106, 00152 Roma RM, Italia, 00100 Roma (RM)

11,00
193,00
4
0
€ 628.000
Vendita all'asta Senza incanto, con gara telematica asincrona - LOTTO UNICO: 100/100 del diritto di proprietà su appartamento in Roma Via Guido Guinizelli n. 106, P.1, T, S1, Int. 3. L’acquirente dell’immobile avrà una quota proporzionale millesimale, rispetto all’appartamento, dell’area coperta e scoperta di pertinenza del fabbricato identificata al Catasto Terreni sez. A Comune Roma Fg.460, part. 590 Ente Urbano. Si dovrà procedere con S.C.I.A. in sanatoria (art. 37 D.P.R. 380/01). Formalità pregiudizievoli non cancellabili dal G.E Emesso ordine liberazione immobile il 3.10.25. Prezzo base € 628.000,00 (offerta minima € 471.000,00). Data inizio operazioni di vendita: 08/01/2026 ore 10:00. Giudice Fernando Dott. Scolaro. Professionista delegato alla vendita Dott. Giovanni Dott. Caravetta. Custode Giudiziario Ivg Di Roma Srl - Email "ivgroma@associazioneivg.legalmail.it"; Cell. 0683751500; Tel. 0683751500. Rif. Tribunale di Roma - Esecuzione immobiliare post legge 80 n. 985/2019

Superficie 193,00 mq
Vani 11,00
Bagni 4
Piano 0

Tipologia di vendita Giudiziaria
Modalità di vendita Asincrona telematica
Termine presentazione offerte 01/01/1900 ore 00:00
Data e ora inizio gara 08/01/2026 ore 10:00
Codice ID astegiudiziarie.it 4331123
11,00
193,00
4
0
€ 628.000

Ti interessa questa vendita?

north_east

Clicca qui per essere indirizzato alla scheda sul sito di provenienza

Bene di astegiudiziarie.it