highlight_off
Riferimento annuncio 307106 info

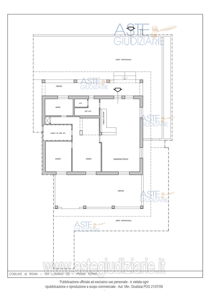
Appartamento Via Lunano, 20b, 00132 Roma RM, Italia, 00100 Roma (RM)

6,00
168,00
2
0
€ 152.000
Vendita all'asta Senza incanto, con gara telematica asincrona - LOTTO 1: Piena proprietà di porzione di villetta bifamiliare con corte esclusiva disposta su due livelli sita in Roma (RM), loc. Corcolle, Via Lunano n. 20/B (catastalmente civ. 20), piani T-1. Prezzo base € 152.000,00 (offerta minima € 114.000,00). Data inizio operazioni di vendita: 03/12/2025 ore 14:00. Giudice Federica D'ambrosio. Professionista delegato alla vendita Avv. Letizia Sdrubolini. Custode Giudiziario Ivg Di Roma Srl - Email "pvp@visiteivgroma.it"; Tel. 0689569801. Rif. Tribunale di Roma - Esecuzione immobiliare post legge 80 n. 384/2022

Superficie 168,00 mq
Vani 6,00
Bagni 2
Piano 0

Tipologia di vendita Giudiziaria
Modalità di vendita Asincrona telematica
Termine presentazione offerte 02/12/2025 ore 23:59
Data e ora inizio gara 03/12/2025 ore 14:00
Codice ID astegiudiziarie.it 4327519
6,00
168,00
2
0
€ 152.000

Ti interessa questa vendita?

north_east

Clicca qui per essere indirizzato alla scheda sul sito di provenienza

Bene di astegiudiziarie.it