highlight_off
Riferimento annuncio 305589 info

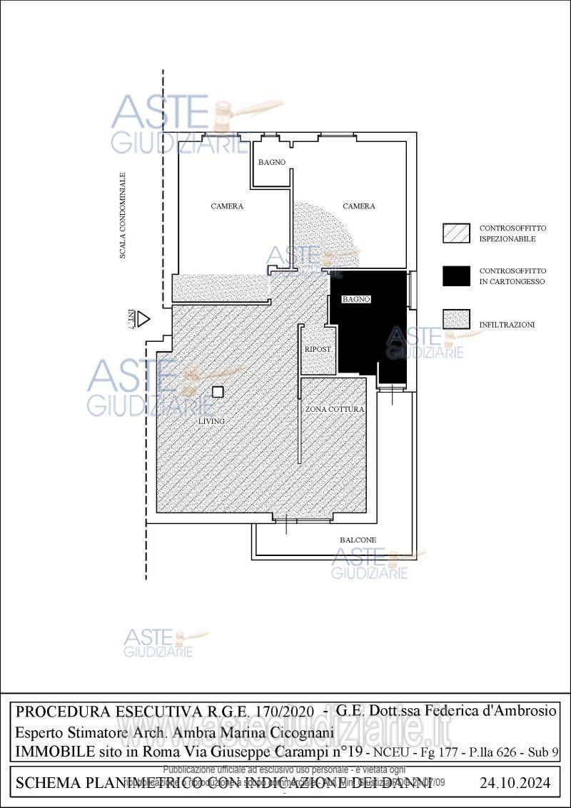
Appartamento Via Giuseppe Carampi, 19, 00135 Roma RM, Italia, 00100 Roma (RM)

5,50
108,00
2
4
€ 171.200
Vendita all'asta Senza incanto, con gara telematica asincrona - LOTTO UNICO: Quota pari a 1/1 del diritto di intera proprietà su appartamento sito in Roma, Via Giuseppe Carampi n. 19, int. 7. Prezzo base € 171.200,00 (offerta minima € 128.400,00). Data inizio operazioni di vendita: 28/10/2025 ore 15:00. Giudice Federica D'ambrosio. Professionista delegato alla vendita Avv. Maria Elena Taruffi. Custode Giudiziario Ivg Di Roma Srl - Email "pvp@visiteivgroma.it"; Tel. 0689569801. Rif. Tribunale di Roma - Esecuzione immobiliare post legge 80 n. 170/2020

Superficie 108,00 mq
Vani 5,50
Bagni 2
Piano 4

Tipologia di vendita Giudiziaria
Modalità di vendita Asincrona telematica
Termine presentazione offerte 01/01/1900 ore 00:00
Data e ora inizio gara 28/10/2025 ore 15:00
Codice ID astegiudiziarie.it 4326515
5,50
108,00
2
4
€ 171.200

Ti interessa questa vendita?

north_east

Clicca qui per essere indirizzato alla scheda sul sito di provenienza

Bene di astegiudiziarie.it