highlight_off
Riferimento annuncio 294509 info

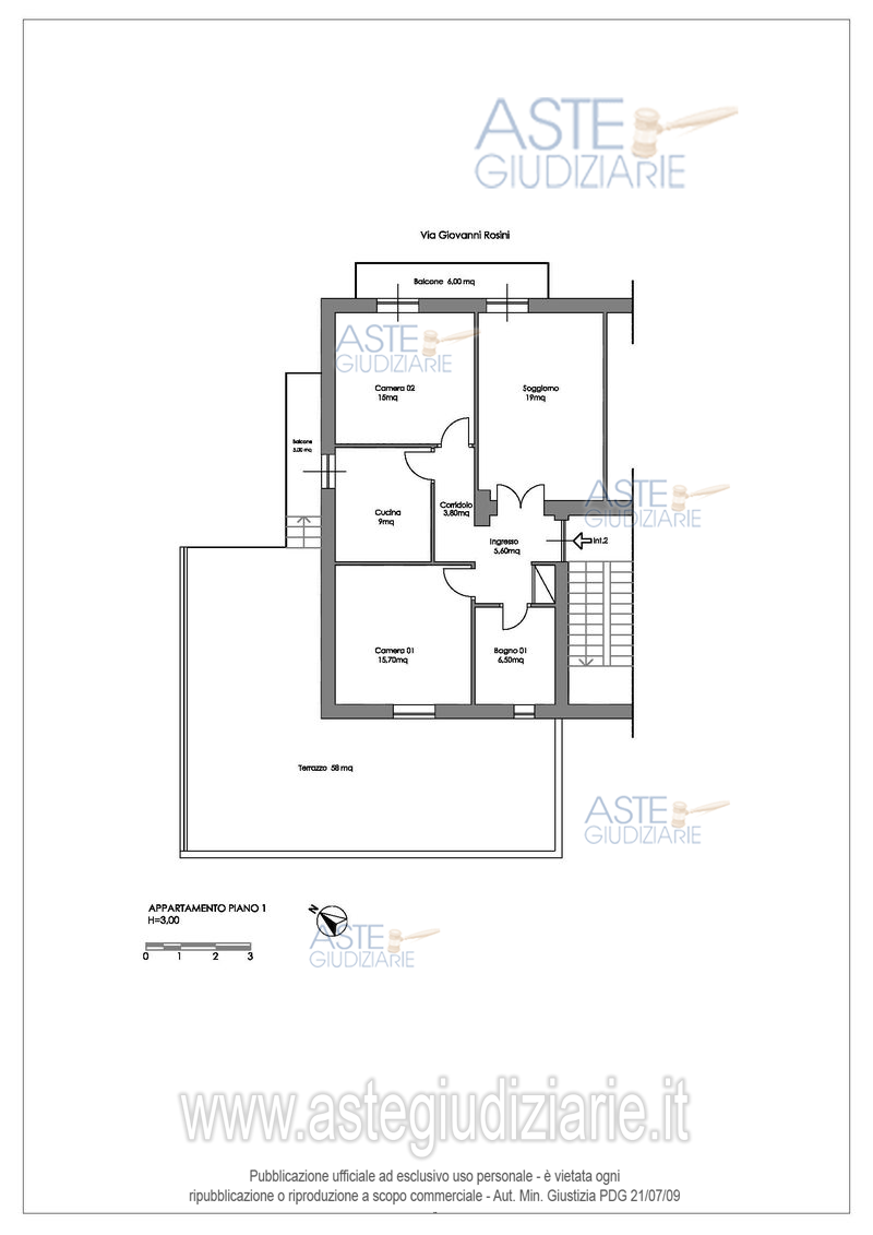
Appartamento Via Giovanni Rosini, 85/interno 2 piano 1, 00133 Roma RM, Italia, 00100 Roma (RM)

5,50
105,00
1
1
€ 167.000
Vendita all'asta Senza incanto, con gara telematica asincrona - LOTTO 1: Piena proprietà su appartamento ubicato a Roma (RM) - via Giovanni Rosini 85, interno 2, piano 1, composto da un ingresso, un soggiorno, una cucina abitabile, un bagno, due camere da letto, un terrazzo e un balcone, per una Superficie Convenzionale di 102 mq. Sono presenti difformità da sanare. Immobile occupato dall'esecutata, si procederà alla liberazione al momento dell'emissione del decreto di trasferimento. Prezzo base € 167.000,00 (offerta minima € 125.250,00). Data inizio operazioni di vendita: 12/11/2025 ore 15:00. Giudice Dott. Miriam Iappelli. Professionista delegato alla vendita Avv. Rosita Vallone. Custode Giudiziario Ivg Di Roma Srl - Email "pvp@visiteivgroma.it"; Tel. 0683751500. Rif. Tribunale di Roma - Espropriazione immobiliare (cartabia) n. 761/2023

Superficie 105,00 mq
Vani 5,50
Bagni 1
Piano 1

Tipologia di vendita Giudiziaria
Modalità di vendita Asincrona telematica
Termine presentazione offerte 11/11/2025 ore 23:59
Data e ora inizio gara 12/11/2025 ore 15:00
Codice ID astegiudiziarie.it 4317368
5,50
105,00
1
1
€ 167.000

Ti interessa questa vendita?

north_east

Clicca qui per essere indirizzato alla scheda sul sito di provenienza

Bene di astegiudiziarie.it