highlight_off
Riferimento annuncio 263242 info

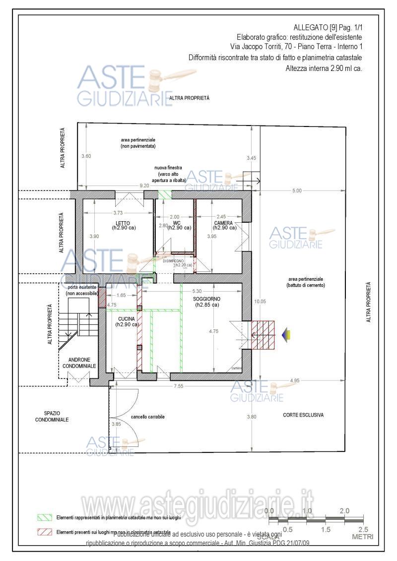
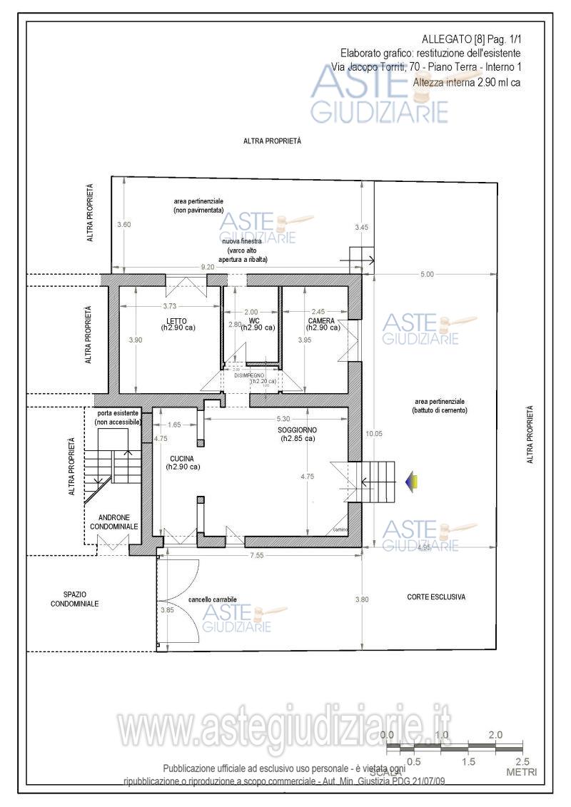
Appartamento Via Jacopo Torriti, 70, 00133 Roma RM, Italia, 00100 Roma (RM)

5,00
97,00
1
0
€ 84.000
Vendita all'asta Senza incanto, con gara telematica asincrona - LOTTO UNICO: Appartamento ubicato a Roma, via Jacopo Torriti 70 Interno 1, piano terra, cat. A2, superficie catastale mq. 97. Prezzo base € 84.000,00 (offerta minima € 63.000,00). Data inizio operazioni di vendita: 18/11/2025 ore 12:00. Giudice Bisceglie. Professionista delegato alla vendita Dott. Maria Landolfi. Custode Giudiziario Ivg Di Roma S.R.L. - Email "pvp@visiteivgroma.it"; Tel. 0689569801. Rif. Tribunale di Roma - Esecuzione immobiliare post legge 80 n. 1141/2021

Superficie 97,00 mq
Vani 5,00
Bagni 1
Piano 0

Tipologia di vendita Giudiziaria
Modalità di vendita Asincrona telematica
Termine presentazione offerte 01/01/1900 ore 00:00
Data e ora inizio gara 18/11/2025 ore 12:00
Codice ID astegiudiziarie.it 4296963
5,00
97,00
1
0
€ 84.000

Ti interessa questa vendita?

north_east

Clicca qui per essere indirizzato alla scheda sul sito di provenienza

Bene di astegiudiziarie.it