highlight_off
Riferimento annuncio 241976 info

Appartamento Via del Casale di Santa Maria, 61, 00132 Roma RM, Italia, 00100 Roma (RM)

3,00
54,00
1
0
€ 36.762
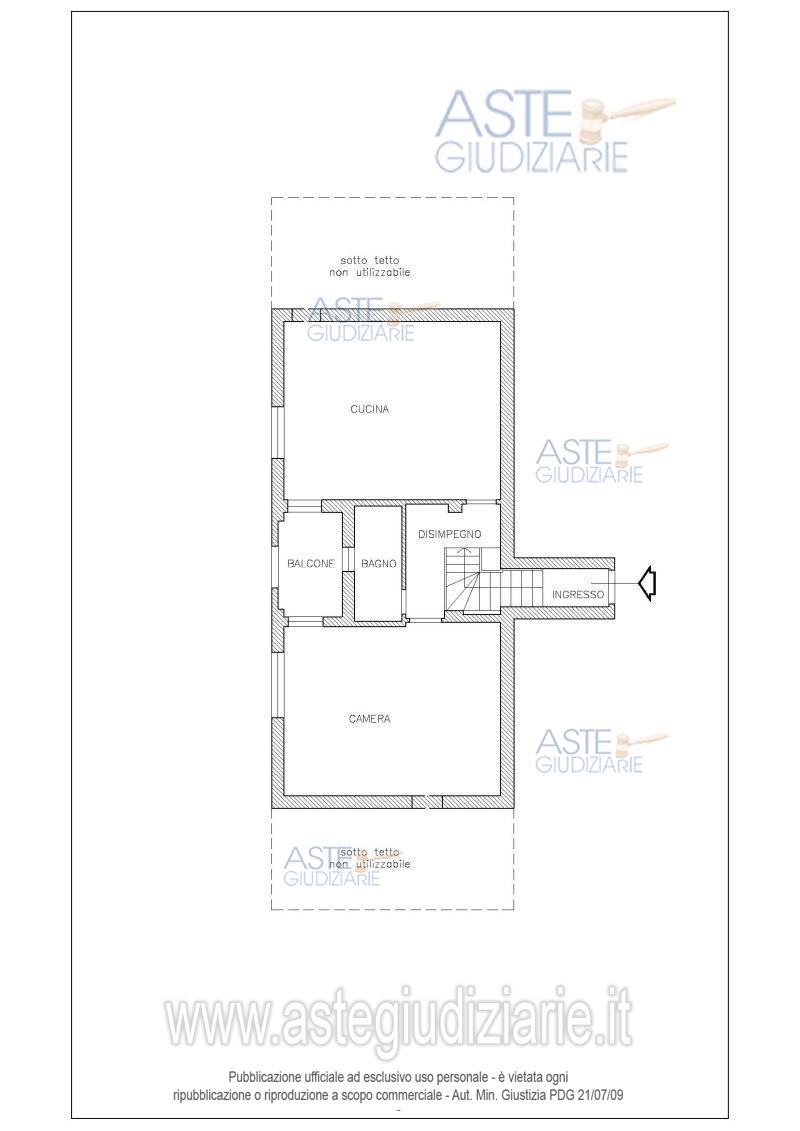
Vendita all'asta Senza incanto, con gara telematica asincrona - LOTTO 2: Quota pari a 1/1 del diritto di piena proprietà su appartamento sito in Roma – Via del Casale di Santa Maria 61, int. 5, piano 1-2 catastalmente composto da ingresso/cucina, camera, bagno e balcone, difformemente da quanto rilevato in loco, come di seguito si precisa, il tutto con superficie convenzionale complessiva pari a mq. 54,00. Prezzo base € 36.761,60 (offerta minima € 27.571,20). Data inizio operazioni di vendita: 18/11/2025 ore 11:00. Giudice Ferramosca. Professionista delegato alla vendita Avv. Angela Sapio. Custode Giudiziario Ivg Di Roma Srl - Email "pvp@visiteivgroma.it"; Tel. 0689569801. Rif. Tribunale di Roma - Esecuzione immobiliare post legge 80 n. 744/2008

Superficie 54,00 mq
Vani 3,00
Bagni 1
Piano 0

Tipologia di vendita Giudiziaria
Modalità di vendita Asincrona telematica
Termine presentazione offerte 01/01/1900 ore 00:00
Data e ora inizio gara 18/11/2025 ore 11:00
Codice ID astegiudiziarie.it 4275642
3,00
54,00
1
0
€ 36.762

Ti interessa questa vendita?

north_east

Clicca qui per essere indirizzato alla scheda sul sito di provenienza

Bene di astegiudiziarie.it