highlight_off
Riferimento annuncio 317439 info

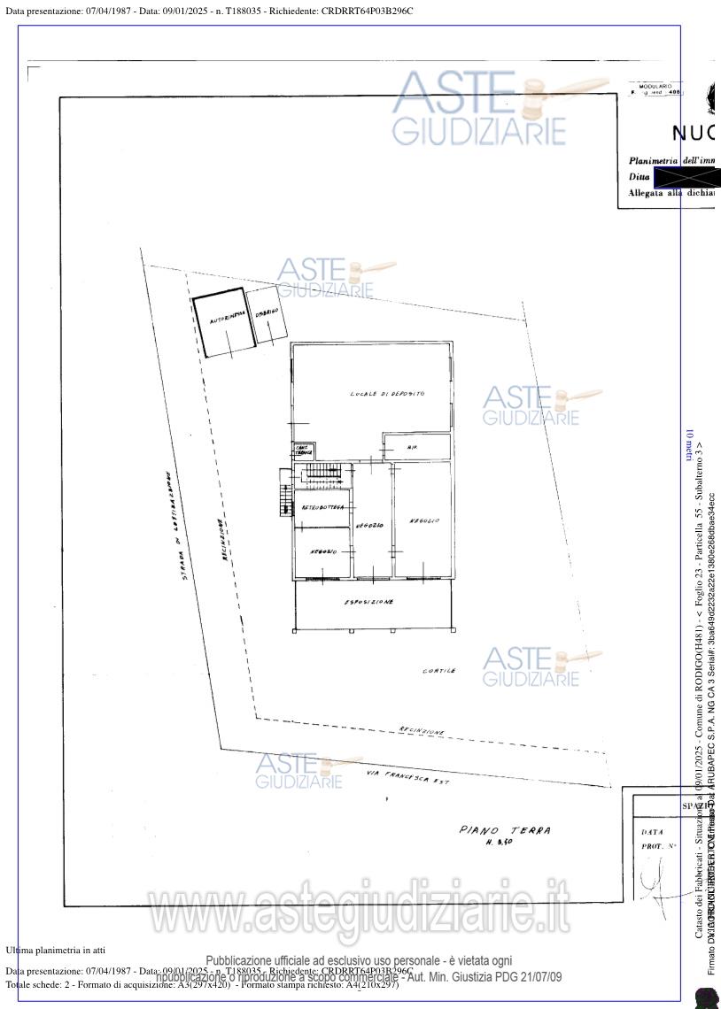
Appartamento Strada Francesca Est, 46040 Rodigo MN, Italia, 46040 Rodigo (MN)

19,00
504,00
3
0
€ 102.416
Vendita all'asta Senza incanto, con gara telematica sincrona mista - LOTTO UNICO: Intera piena proprietà di:-Negozio posto al piano terra composto da locale esposizione, tre locali negozio, retrobottega, bagno e vano scale;- Magazzino posto al piano terra composto da locale deposito, ripostiglio, bagno e centrale termica;-Appartamento posto al piano primo composto da vano scale, ingresso, terrazza, studio, soggiorno, cucina, veranda,corridoio, tre camere da letto e bagno; con locale disbrigo, in corpo staccato;- Garage posto al piano piano terra, in corpo staccato. Prezzo base € 102.416,00 (offerta minima € 76.812,00). Data vendita 18/12/2025 ore 14:00. Professionista delegato alla vendita Dott. Francesca Freddi - Email "freddistudioscardovelli@gmail.com"; Tel. 0376222100. Custode Giudiziario So.Ve.Mo. Srl - Email "immobiliaremantova@sovemo.com"; Tel. 0376220694. Rif. Tribunale di Mantova - Espropriazione immobiliare (cartabia) n. 243/2024

Superficie 504,00 mq
Vani 19,00
Bagni 3
Piano 0

Tipologia di vendita Giudiziaria
Modalità di vendita Sincrona mista
Termine presentazione offerte 15/12/2025 ore 12:00
Data e ora inizio gara 18/12/2025 ore 14:00
Codice ID astegiudiziarie.it 4337982
19,00
504,00
3
0
€ 102.416

Ti interessa questa vendita?

north_east

Clicca qui per essere indirizzato alla scheda sul sito di provenienza

Bene di astegiudiziarie.it