highlight_off
Riferimento annuncio 319184 info

Appartamento Via Cava, 15, 80030 Roccarainola NA, Italia, 80030 Roccarainola (NA)

5,00
179,00
1
€ 109.305
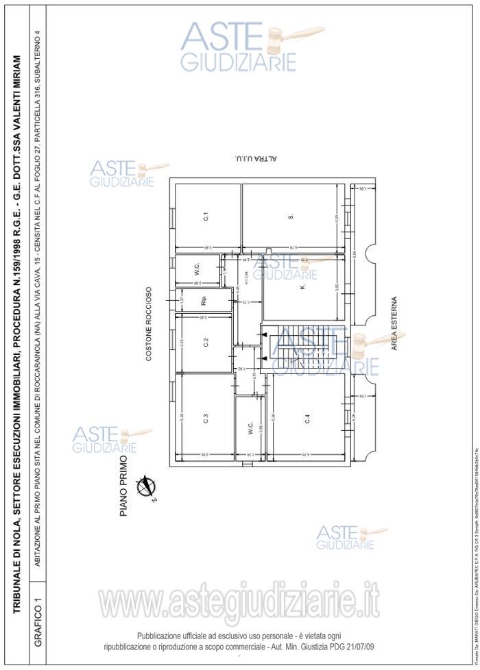
Vendita all'asta Senza incanto, con gara telematica asincrona - LOTTO 1: Appartamento sito al primo piano di circa 179 mq. composto da un'ampia cucina, cinque camere e doppi servizi igienici. Prezzo base € 109.305,13 (offerta minima € 81.978,85). Data inizio operazioni di vendita: 11/02/2026 ore 16:00. Custode Giudiziario Dott. Gioconda Fortuna - Email "giocondafortuna@gmail.com"; Cell. 3483406195; Tel. 0818493093. Rif. Tribunale di Nola - Esecuzione immobiliari n. 159/1998

Superficie 179,00 mq
Vani 5,00
Bagni
Piano 1

Tipologia di vendita Giudiziaria
Modalità di vendita Asincrona telematica
Termine presentazione offerte 10/02/2026 ore 23:59
Data e ora inizio gara 11/02/2026 ore 16:00
Codice ID astegiudiziarie.it 4339261
5,00
179,00
1
€ 109.305

Ti interessa questa vendita?

north_east

Clicca qui per essere indirizzato alla scheda sul sito di provenienza

Bene di astegiudiziarie.it