highlight_off
Riferimento annuncio 307523 info

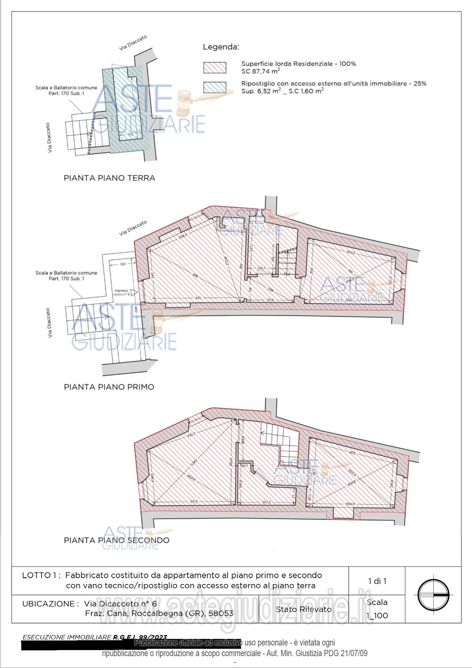
Appartamento VIa Diacceto, 6, 58053 Cana GR, Italia, 58053 Roccalbegna (GR)

0
€ 25.432
Vendita all'asta Senza incanto, con gara telematica asincrona - LOTTO UNICO: 1/1 di intera piena proprietà di appartamento sito in Roccalbegna, fraz. Cana, Via Diacceto n. 6, e di vano tecnico identificabile come vano accessorio all’abitazione ed insistente sotto al ballatoio comune. Prezzo base € 25.432,00 (offerta minima € 19.074,00). Data inizio operazioni di vendita: 13/05/2026 ore 10:00. Giudice: Cristina Nicolò. Professionista delegato alla vendita: Avv. Irene Andolfi - Email "andolfi@olt.legal"; Cell. 349/7540933. Custode Giudiziario: Lucia Ghelli - Email "ivggrosseto@astagiudiziaria.com"; Cell. 342/6598791. Rif. Tribunale di Grosseto - Espropriazione immobiliare (cartabia) n. 99/2023

Superficie mq
Vani
Bagni
Piano 0

Tipologia di vendita Giudiziaria
Modalità di vendita Asincrona telematica
Termine presentazione offerte 08/05/2026 ore 23:59
Data e ora inizio gara 13/05/2026 ore 10:00
Codice ID astegiudiziarie.it 4329658
0
€ 25.432

Ti interessa questa vendita?

north_east

Clicca qui per essere indirizzato alla scheda sul sito di provenienza

Bene di astegiudiziarie.it