highlight_off
Riferimento annuncio 307746 info

Appartamento Largo Duca D'Aosta, 10, 27038 Robbio (PV)

4,50
80,00
0
€ 20.625
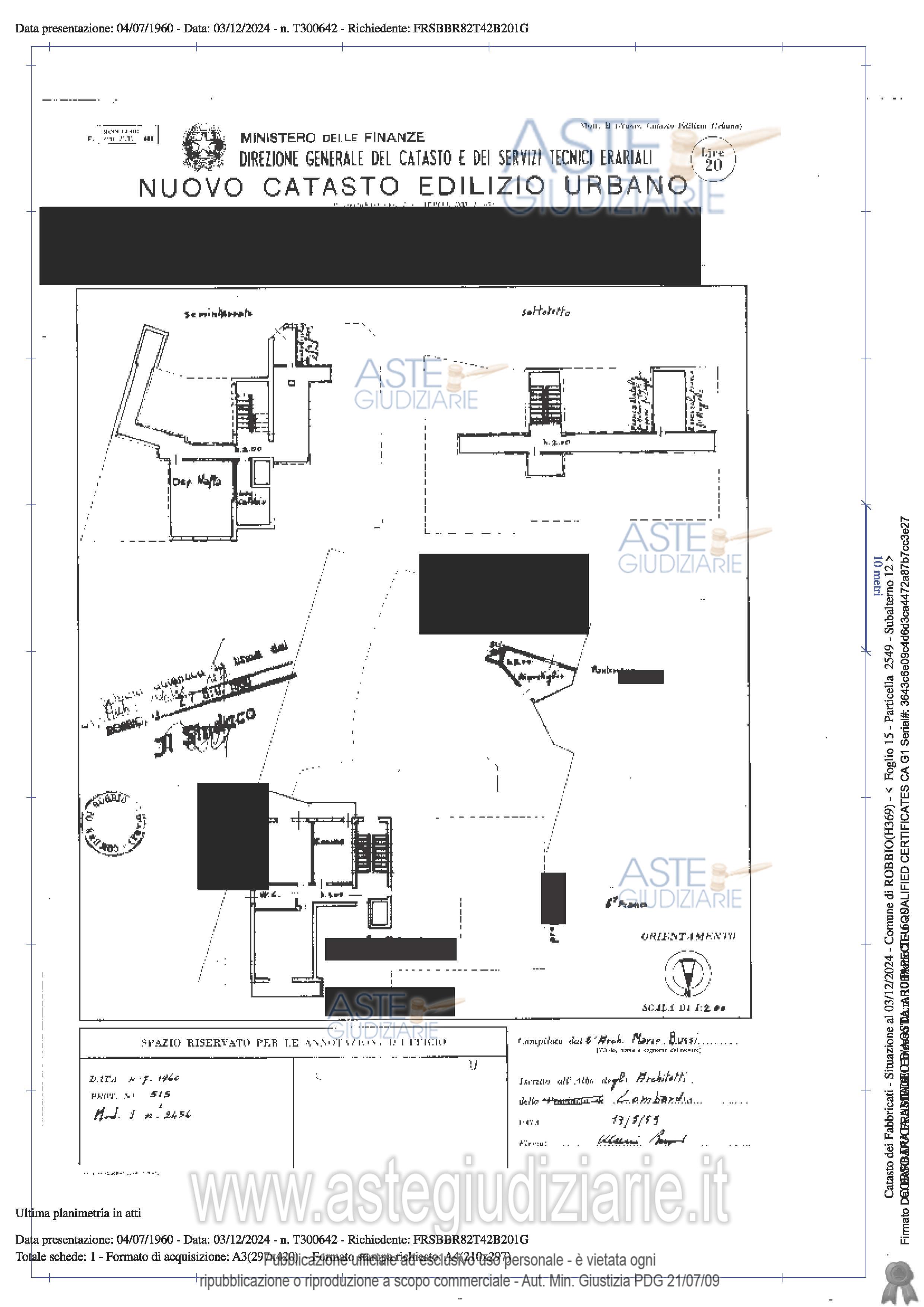
Vendita all'asta Senza incanto, con gara telematica asincrona - LOTTO UNICO: Appartamento posto al piano sesto di un fabbricato condominiale denominato Condominio “Duca D'Aosta”, composto da soggiorno, cucina, disimpegno, un bagno, una camera e due balconi. Risultano annesse all’abitazione principale pertinenze ad uso cantina ai piani seminterrato e sottotetto. Superficie lorda mq 80,00 circa. Prezzo base € 20.625,00 (offerta minima € 15.469,00). Data inizio operazioni di vendita: 03/12/2025 ore 16:00. Giudice Francesco Rocca. Professionista delegato alla vendita Avv. Giorgio Caresana - Email "gcaresana@fastwebnet.it"; Tel. 0384672660. Custode Giudiziario Istituto Vendite Giudiziarie Di Vigevano - Email "ivgvigevano@ivgpiemonte.it"; Tel. 0381691137. Rif. Tribunale di Pavia - Espropriazione immobiliare (cartabia) n. 271/2024

Superficie 80,00 mq
Vani 4,50
Bagni
Piano 0

Tipologia di vendita Giudiziaria
Modalità di vendita Asincrona telematica
Termine presentazione offerte 01/01/1900 ore 00:00
Data e ora inizio gara 03/12/2025 ore 16:00
Codice ID astegiudiziarie.it 4329852
4,50
80,00
0
€ 20.625

Ti interessa questa vendita?

north_east

Clicca qui per essere indirizzato alla scheda sul sito di provenienza

Bene di astegiudiziarie.it