highlight_off
Riferimento annuncio 149022 info

Appartamento Contrada Margi, 89016 Rizziconi (RC)

12,50
425,00
0
€ 26.614
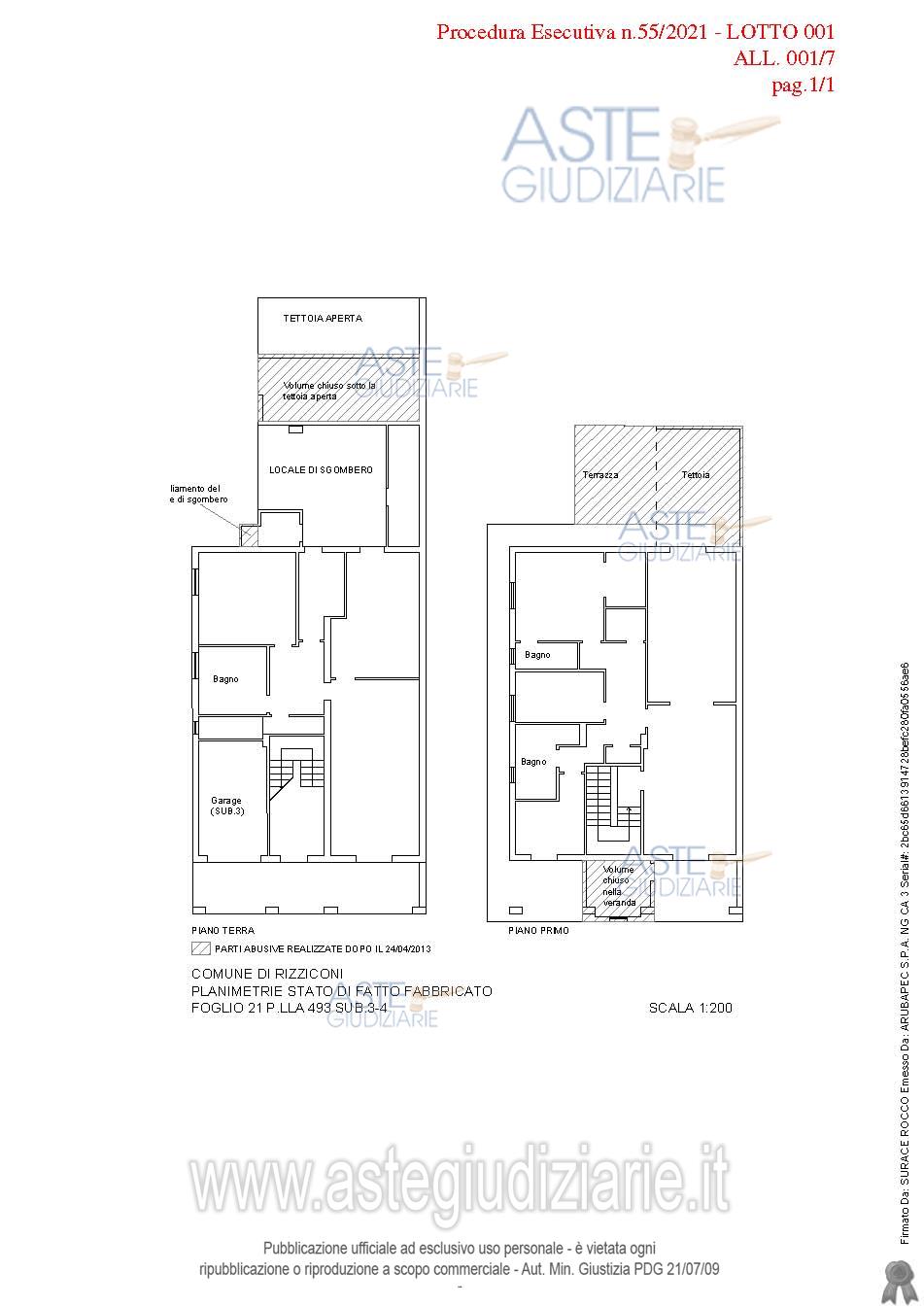
Vendita all'asta Senza incanto, con gara telematica asincrona - LOTTO UNICO: Piena proprietà di un fabbricato a due piano f.t. comprendente due abitazioni, un locale garage e due locali accessori, sottotetto non praticabile oltre corte annessa. Sul fabbricato sono state realizzate opere abusive non sanabili. Prezzo base € 26.614,36 (offerta minima € 19.960,77). Data inizio operazioni di vendita: 18/12/2025 ore 11:00. Giudice Dott. Marta Caineri. Professionista delegato alla vendita Avv. Angelo Langone - Tel. 096645666. Custode Giudiziario Avv. Angelo Langone - Tel. 096645666. Rif. Tribunale di Palmi - Esecuzione immobiliare post legge 80 n. 55/2021

Superficie 425,00 mq
Vani 12,50
Bagni
Piano 0

Tipologia di vendita Giudiziaria
Modalità di vendita Asincrona telematica
Termine presentazione offerte 01/01/1900 ore 00:00
Data e ora inizio gara 18/12/2025 ore 11:00
Codice ID astegiudiziarie.it 4254070
12,50
425,00
0
€ 26.614

Ti interessa questa vendita?

north_east

Clicca qui per essere indirizzato alla scheda sul sito di provenienza

Bene di astegiudiziarie.it