highlight_off
Riferimento annuncio 300043 info

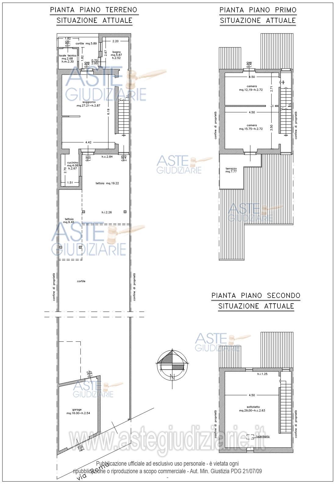
Appartamento Via Roma, 32, 13030 Rive (VC)

5,50
166,53
1
0
€ 34.336
Vendita all'asta Senza incanto, con gara telematica asincrona - LOTTO UNICO: fabbricato di civile abitazione ad uso residenziale di mq. 146,53 e basso fabbricato ad uso garage di mq. 20. Prezzo base € 34.336,46 (offerta minima € 25.752,34). Data inizio operazioni di vendita: 10/12/2025 ore 15:00. Professionista delegato alla vendita Avv. Daniela Lionetti - Email "danielalionetti1@virgilio.it"; Tel. 3384826597. Custode Giudiziario Avv. Daniela Lionetti - Email "danielalionetti1@virgilio.it"; Tel. 3384826597. Rif. Tribunale di Vercelli - Espropriazione immobiliare (cartabia) n. 103/2024

Superficie 166,53 mq
Vani 5,50
Bagni 1
Piano 0

Tipologia di vendita Giudiziaria
Modalità di vendita Asincrona telematica
Termine presentazione offerte 09/12/2025 ore 12:00
Data e ora inizio gara 10/12/2025 ore 15:00
Codice ID astegiudiziarie.it 4323785
5,50
166,53
1
0
€ 34.336

Ti interessa questa vendita?

north_east

Clicca qui per essere indirizzato alla scheda sul sito di provenienza

Bene di astegiudiziarie.it