highlight_off
Riferimento annuncio 332107 info

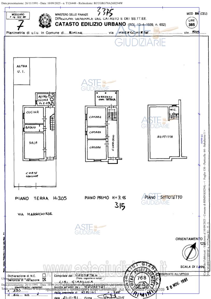
Appartamento Via Marecchiese, 575 loc. Corpolò, 47900 Rimini (RN)

201,53
0
€ 308.500
Vendita all'asta Senza incanto, con gara telematica asincrona - LOTTO UNICO: unità immobiliare di civile abitazione, disposta sui piani terra, primo e sottotetto, con corte e garage al piano terra, e precisamente: -appartamento composto, al piano terra, da ingresso, sala, bagno, cucina e retro; al piano primo, da corridoio, terrazzo con tettoia, tre camere; al piano sottotetto, da w.c. e soffitta; -garage al piano terra della superficie catastale di metri quadrati dodici (mq. 12); . Prezzo base € 308.500,00 (offerta minima € 231.375,00). Data inizio operazioni di vendita: 10/06/2026 ore 15:00. Giudice Dott. Letizia Bocchini. Professionista delegato alla vendita Dott. Nicola Montevecchi - Email "nicola@studio-montevecchi.it"; Cell. 3284856569; Tel. 0541772541. Custode Giudiziario Dott. Nicola Montevecchi - Email "nicola@studio-montevecchi.it"; Cell. 3284856569; Tel. 0541772541. Rif. Tribunale di Rimini - Espropriazione immobiliare (cartabia) n. 31/2025

Superficie 201,53 mq
Vani
Bagni
Piano 0

Tipologia di vendita Giudiziaria
Modalità di vendita Asincrona telematica
Termine presentazione offerte 09/06/2026 ore 13:00
Data e ora inizio gara 10/06/2026 ore 15:00
Codice ID astegiudiziarie.it 4349691
201,53
0
€ 308.500

Ti interessa questa vendita?

north_east

Clicca qui per essere indirizzato alla scheda sul sito di provenienza

Bene di astegiudiziarie.it