highlight_off
Riferimento annuncio 321904 info

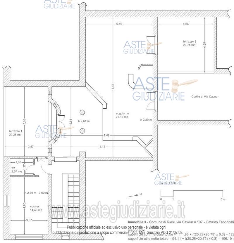
Appartamento Via Camillo Benso Cavour, 107, 93016 Riesi CL, Italia, 93016 Riesi (CL)

5,00
450,89
0
€ 188.280
Vendita all'asta Senza incanto, con gara telematica sincrona mista - LOTTO UNICO: Il bene in vendita è composto da: Immobile 1 per identificare l'appartamento in via Cavour n. 107 (ex 111) a Riesi (CL) (piano primo); Immobile 2 per identificare l'appartamento in via Cavour n. 107 (ex 111) a Riesi (CL) (piano secondo); Immobile 3 per identificare l'appartamento in via Cavour n. 107 (ex 111) a Riesi (CL) (piano terzo). Prezzo base € 188.280,00 (offerta minima € 141.210,00). Data vendita 19/02/2026 ore 16:00. Giudice Dott. Francesco Lauricella. Professionista delegato alla vendita Avv. Luigia Caramazza. Custode Giudiziario Avv. Luigia Caramazza - Email "luisacaramazza@hotmail.it"; Cell. 3331024486. Rif. Tribunale di Caltanissetta - Espropriazione immobiliare (cartabia) n. 73/2023

Superficie 450,89 mq
Vani 5,00
Bagni
Piano 0

Tipologia di vendita Giudiziaria
Modalità di vendita Sincrona mista
Termine presentazione offerte 18/02/2026 ore 12:00
Data e ora inizio gara 19/02/2026 ore 16:00
Codice ID astegiudiziarie.it 4341742
5,00
450,89
0
€ 188.280

Ti interessa questa vendita?

north_east

Clicca qui per essere indirizzato alla scheda sul sito di provenienza

Bene di astegiudiziarie.it