highlight_off
Riferimento annuncio 308077 info

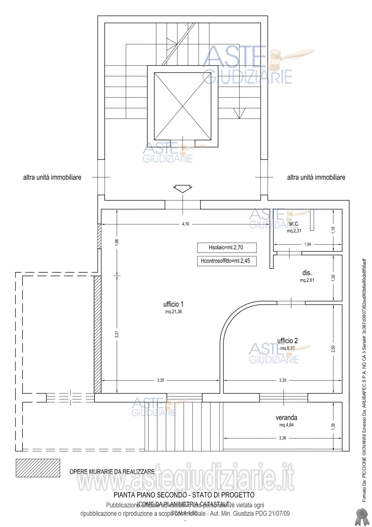
Appartamento Via Giorgio Perlasca 6, 97100 Ragusa (RG)

2,50
41,92
0
€ 31.350
Vendita all'asta Senza incanto, con gara telematica sincrona mista - LOTTO UNICO: Piena proprietà di appartamento di mq 41,92 ad uso ufficio ubicato in Ragusa, Via Giorgio Perlasca n. 6, scala A, piano 2. Prezzo base € 31.350,00 (offerta minima € 23.512,50). Data vendita 22/01/2026 ore 18:00. Giudice Carlo Di Cataldo. Professionista delegato alla vendita Avv. Francesco Giardina - Email "giardina74@libero.it". Custode Giudiziario Avv. Francesco Giardina - Email "giardina74@libero.it"; Tel. 0932954825. Rif. Tribunale di Ragusa - Esecuzione immobiliare post legge 80 n. 186/2020

Superficie 41,92 mq
Vani 2,50
Bagni
Piano 0

Tipologia di vendita Giudiziaria
Modalità di vendita Sincrona mista
Termine presentazione offerte 01/01/1900 ore 00:00
Data e ora inizio gara 22/01/2026 ore 18:00
Codice ID astegiudiziarie.it 4330081
2,50
41,92
0
€ 31.350

Ti interessa questa vendita?

north_east

Clicca qui per essere indirizzato alla scheda sul sito di provenienza

Bene di astegiudiziarie.it