highlight_off
Riferimento annuncio 307255 info

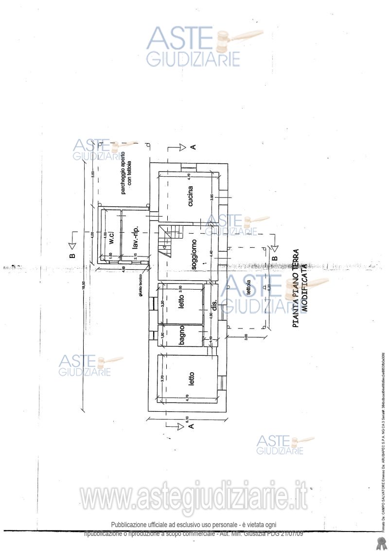
Appartamento Contrada SAN GIACOMO, via del Tellesimo 6, 97100 Ragusa (RG)

4,00
130,22
0
€ 57.994
Vendita all'asta Senza incanto, con gara telematica sincrona mista - LOTTO 1: Quota di 1/2 del diritto di proprietà su immobile (villetta) su due livelli ubicato su un appezzamento di terreno agricolo arborato con alberi di carrubo e ulivo che ha una estensione di 13.319 mq ed è poco distante dal centro della contrada di San Giacomo. Prezzo base € 57.993,75 (offerta minima € 43.495,31). Data vendita 29/05/2026 ore 11:00. Giudice Francesco Rio. Professionista delegato alla vendita Avv. Rosa Scrofani - Email "rossellascrofani@hotmail.it". Custode Giudiziario Avv. Rosa Scrofani - Email "rossellascrofani@hotmail.it"; Tel. 3394372250. Rif. Tribunale di Ragusa - Esecuzione immobiliare post legge 80 n. 22/2023

Superficie 130,22 mq
Vani 4,00
Bagni
Piano 0

Tipologia di vendita Giudiziaria
Modalità di vendita Sincrona mista
Termine presentazione offerte 01/01/1900 ore 00:00
Data e ora inizio gara 29/05/2026 ore 11:00
Codice ID astegiudiziarie.it 4329472
4,00
130,22
0
€ 57.994

Ti interessa questa vendita?

north_east

Clicca qui per essere indirizzato alla scheda sul sito di provenienza

Bene di astegiudiziarie.it