highlight_off
Riferimento annuncio 286063 info

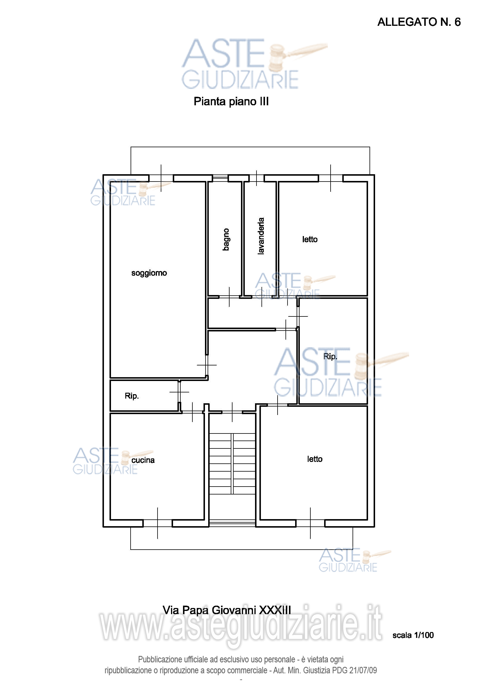
Appartamento Via Papa Giovanni XXIII, 45, 95040 Raddusa CT, Italia, 95040 Raddusa (CT)

3
€ 19.406
Vendita all'asta Senza incanto, con gara telematica sincrona mista - LOTTO UNICO: Appartamento al terzo piano di un edificio condominiale sito a Raddusa (CT) in via Papa Giovanni XXXIII 45, consistenza 6 vani superficie calpestabile 147mq. Prezzo base € 19.406,25 (offerta minima € 14.554,70). Data vendita 23/01/2026 ore 12:00. Professionista delegato alla vendita Avv. Fabio Bonsignore - Email "fabiobonsignore50@gmail.com"; Cell. 3280126257; Tel. 0933362882. Custode Giudiziario Avv. Fabio Bonsignore - Email "fabiobonsignore50@gmail.com"; Cell. 3280126257; Tel. 0933362882. Rif. Tribunale di Caltagirone - Esecuzione immobiliare post legge 80 n. 23/2022

Superficie mq
Vani
Bagni
Piano 3

Tipologia di vendita Giudiziaria
Modalità di vendita Sincrona mista
Termine presentazione offerte 22/01/2026 ore 12:00
Data e ora inizio gara 23/01/2026 ore 12:00
Codice ID astegiudiziarie.it 4313149
3
€ 19.406

Ti interessa questa vendita?

north_east

Clicca qui per essere indirizzato alla scheda sul sito di provenienza

Bene di astegiudiziarie.it