highlight_off
Riferimento annuncio 321691 info

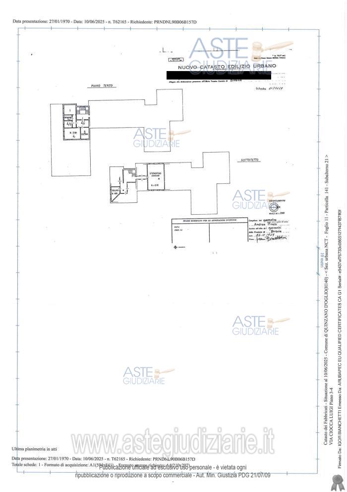
Appartamento Via Ciocca Luigi 36, 25027 Quinzano d'Oglio (BS)

4,00
111,00
0
€ 46.600
Vendita all'asta Senza incanto, con gara telematica asincrona - LOTTO UNICO: Appartamento quadrilocale posto al piano terzo, con solaio al piano quarto, sito in edificio condominiale. Prezzo base € 46.600,00 (offerta minima € 34.950,00). Data inizio operazioni di vendita: 03/02/2026 ore 12:00. Giudice Simonetta Bruno. Professionista delegato alla vendita Avv. Simona Chiari. Custode Giudiziario Avv. Simona Chiari - Email "simonachiari@gmail.com". Rif. Tribunale di Brescia - Espropriazione immobiliare (cartabia) n. 173/2025

Superficie 111,00 mq
Vani 4,00
Bagni
Piano 0

Tipologia di vendita Giudiziaria
Modalità di vendita Asincrona telematica
Termine presentazione offerte 01/01/1900 ore 00:00
Data e ora inizio gara 03/02/2026 ore 12:00
Codice ID astegiudiziarie.it 4341284
4,00
111,00
0
€ 46.600

Ti interessa questa vendita?

north_east

Clicca qui per essere indirizzato alla scheda sul sito di provenienza

Bene di astegiudiziarie.it