highlight_off
Riferimento annuncio 303284 info

Appartamento VICO REGINA ELENA 47, 09045 Quartu Sant'Elena CA, Italia, 09045 Quartu Sant'Elena (CA)

8,00
160,00
0
€ 272.000
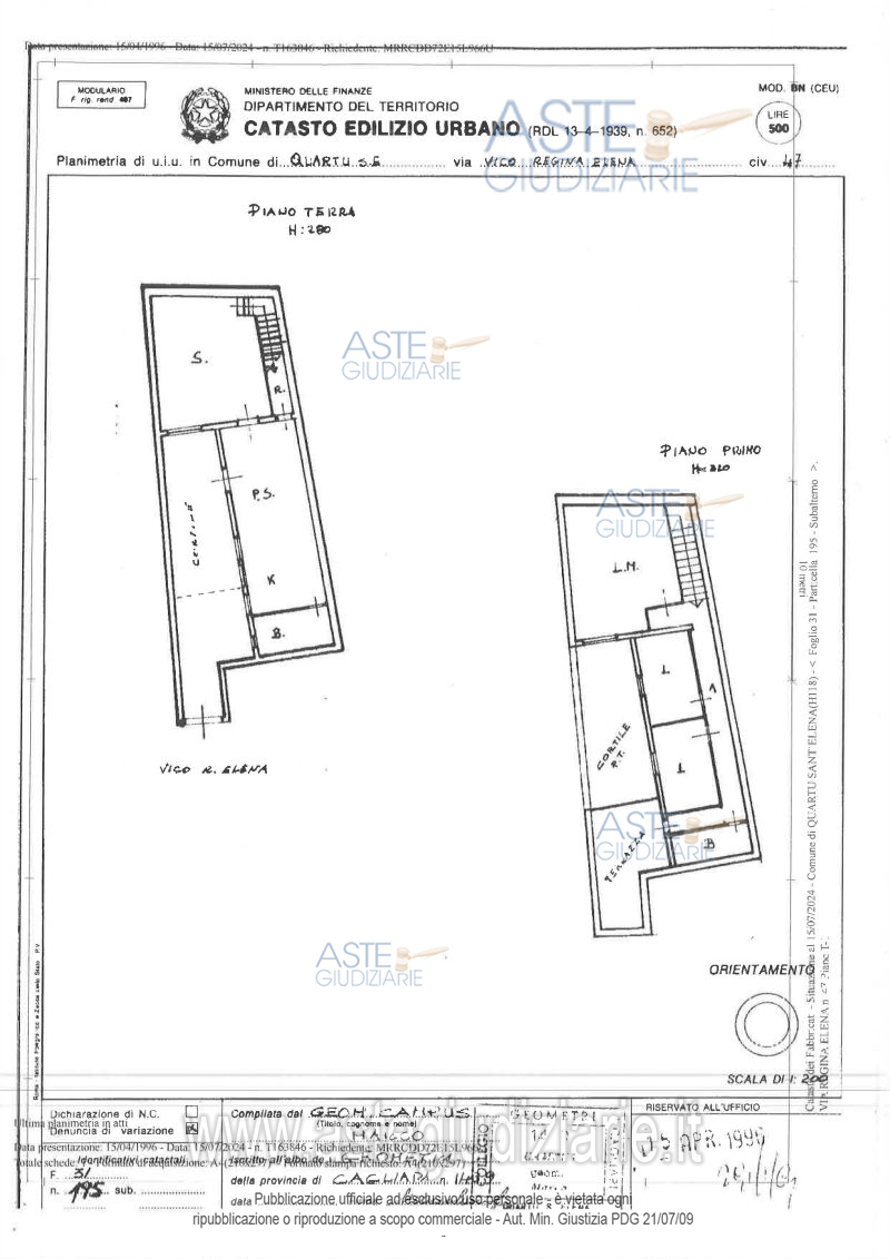
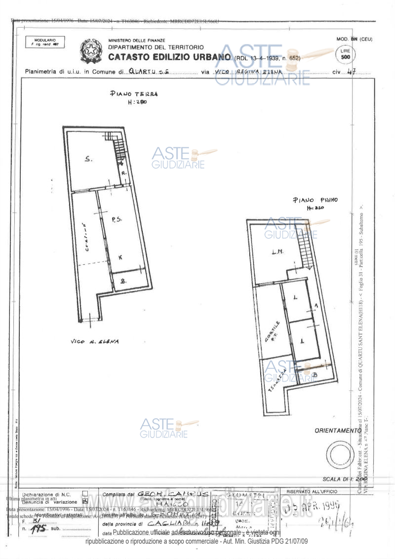
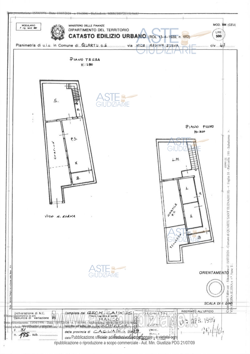
Vendita all'asta Senza incanto, con gara telematica asincrona - LOTTO UNICO: Quota pari all’intero del diritto di proprietà del fabbricato ad uso abitativo su due livelli con accesso dal Vico Regina Elena n.47 composto al piano terra da bagno, angolo cottura, pranzo soggiorno, soggiorno, vano scala con piccolo ripostiglio sottostante e cortile di pertinenza; al piano primo da disimpegno, tre camere, bagno e terrazza comunicante con il disimpegno, oltre terrazza al piano secondo con piccolo vano sottotetto e cortile di pertinenza al piano terra . Prezzo base € 272.000,00 (offerta minima € 204.000,00). Data inizio operazioni di vendita: 02/12/2025 ore 09:00. Giudice Francesco De Giorgi. Professionista delegato alla vendita Giuditta Grilletti - Email "ufficiouniconotai@pec.it"; Tel. 07060222574. Custode Giudiziario Ivg Cagliari - Email "ivg.visiteimmobili@tiscali.it"; Tel. 0702299036. Rif. Tribunale di Cagliari - Esecuzione immobiliare post legge 80 n. 195/2021

Superficie 160,00 mq
Vani 8,00
Bagni
Piano 0

Tipologia di vendita Giudiziaria
Modalità di vendita Asincrona telematica
Termine presentazione offerte 01/01/1900 ore 00:00
Data e ora inizio gara 02/12/2025 ore 09:00
Codice ID astegiudiziarie.it 4326416
8,00
160,00
0
€ 272.000

Ti interessa questa vendita?

north_east

Clicca qui per essere indirizzato alla scheda sul sito di provenienza

Bene di astegiudiziarie.it